**Standout Features:**
- Conveniently located in a popular, cosmopolitan neighborhood
- Recently upgraded, maintaining traditional Victorian character
- Spacious one-bedroom flat with private front garden
- Gas central heating and double-glazing for comfort
- Security-controlled entrance system for added safety
- Fast broadband and excellent mobile signal
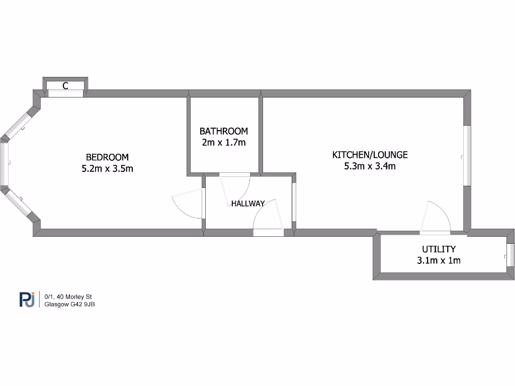
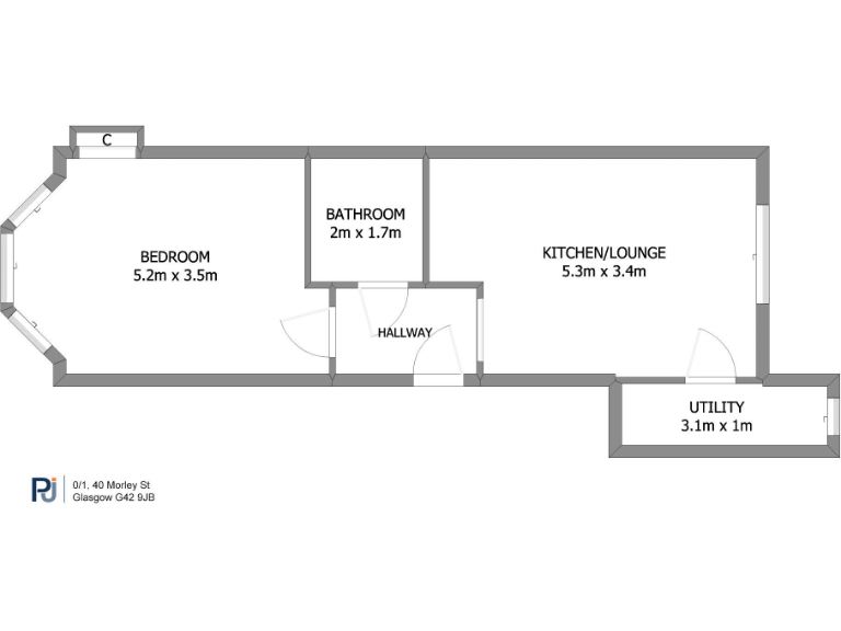
This beautifully modernized ground floor flat blends contemporary elegance with classic Victorian charm, making it an ideal choice for professionals, investors, or first-time buyers. The property features a welcoming entrance hall leading to a thoughtfully designed open-plan lounge and bespoke kitchen, complete with ample storage and a convenient breakfast bar. The bright, spacious double bedroom, adorned with original details like a center rose and bay window, offers a lovely view of the private front garden, enhancing your daily living experience.
Conveniently situated in a sought-after South Side locale, you'll find a vibrant array of shops, cafes, and excellent public transport links just steps away. This charming property is competitively priced at £115,000, presenting an exceptional opportunity in a fast-growing area. With a closing date set for Thursday, August 21st, don't miss your chance to secure this unique home, where comfort, character, and convenience await!
1 bedroom apartment for sale in Pollokshaws Road, Strathbungo, Glasgow, G41 — £120,000 • 1 bed • 1 bath • 417 ft²
1 bedroom apartment for sale in Skirving Street, Shawlands, Glasgow, G41 — £145,000 • 1 bed • 1 bath • 518 ft²
1 bedroom flat for sale in Torrisdale Street, Queens Park, Glasgow, G42 — £125,000 • 1 bed • 1 bath • 479 ft²
1 bedroom flat for sale in Flat 2/2, 133 Cartvale Road, Battlefield, G42 — £170,000 • 1 bed • 1 bath • 714 ft²
1 bedroom flat for sale in Craigie Street, Strathbungo, Glasgow, G42 — £115,000 • 1 bed • 1 bath • 401 ft²
1 bedroom flat for sale in Rannoch Street, Glasgow, G44 — £110,000 • 1 bed • 1 bath • 452 ft²










































































































