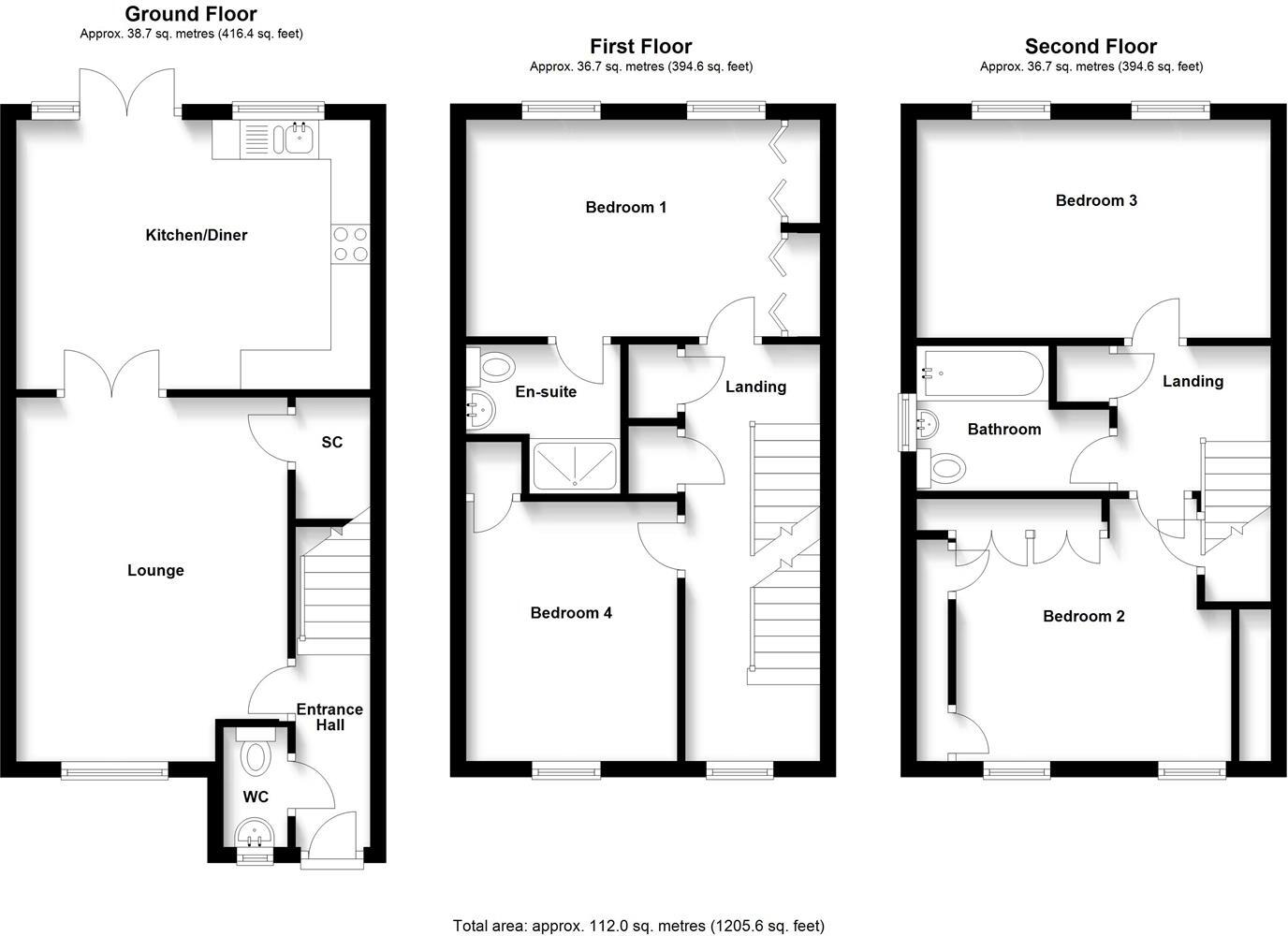
Three storeys of practical family living with low-maintenance garden and garage.
- Four double bedrooms including master with en-suite
- Spacious kitchen/diner with double doors to garden
- Re-landscaped low-maintenance rear garden with paving and artificial lawn
- Garage with power, lighting and driveway parking
- Built c.1996–2002; double glazing (install date unknown)
- Plot and garden are small for a family home
- Council tax band above average
- Located in Great Ashby near good and outstanding schools
Guide price £450,000–£475,000. This three-storey semi-detached house in Great Ashby offers practical family living across 1,205 sq ft. The ground floor provides a welcoming hallway, cloakroom, front lounge and a large kitchen/diner with double doors opening onto a low-maintenance rear garden.
Upstairs are four double bedrooms, including a master with fitted wardrobes and an en-suite, plus a family bathroom. The property includes a garage with power and lighting, driveway parking and useful boarded roof eaves for storage. Built c.1996–2002, the home benefits from mains gas central heating and double glazing (install date unknown).
The garden has been re-landscaped with paving and artificial lawn for easy upkeep, making it suitable for families who prefer low maintenance outside space. The plot is small and the garden is compact compared with larger suburban plots. Council tax is above average for the area.
This is a practical, well-presented family home in an affluent, low-crime neighbourhood close to outstanding and good-rated schools, local amenities and countryside walks. It will suit growing families or investors seeking a straightforward rental proposition; some buyers may want to update certain finishes to personalise the home.
3 bedroom end of terrace house for sale in Fairfield Way, Stevenage, SG1 — £375,000 • 3 bed • 2 bath • 969 ft²
5 bedroom detached house for sale in Haybluff Drive, Stevenage, SG1 — £615,000 • 5 bed • 3 bath • 2087 ft²
3 bedroom semi-detached house for sale in Swale Close, Stevenage, Hertfordshire, SG1 — £400,000 • 3 bed • 2 bath • 1127 ft²
3 bedroom town house for sale in Mendip Way, Stevenage, Hertfordshire, SG1 — £375,000 • 3 bed • 1 bath • 1185 ft²
3 bedroom detached house for sale in Thirlmere, Great Ashby, Stevenage, SG1 — £450,000 • 3 bed • 2 bath • 648 ft²
3 bedroom semi-detached house for sale in Great Ashby Way, Stevenage, Hertfordshire, SG1 6DT, SG1 — £445,000 • 3 bed • 2 bath • 833 ft²






























































































