Low-maintenance retirement living near Brecon town centre and national park.
Second-floor retirement flat with lift access and communal gardens
Chain free and ready to move into
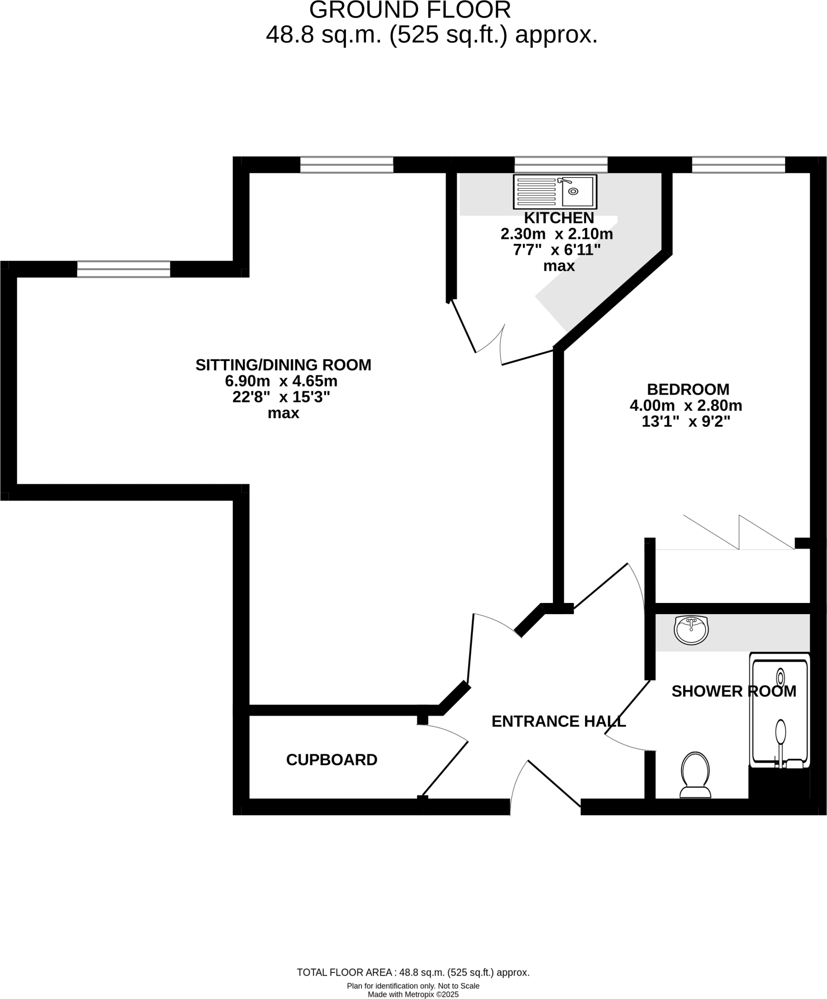
One bedroom, one bathroom, approx. 525 sq ft (compact footprint)
Leasehold with 125-year lease from June 2004; age restrictions apply
Electric storage heating; no gas central heating (potentially higher running costs)
Communal parking courtyard; immediate outdoor space is shared
Area records high crime and very-deprived indicators — consider local services
Average broadband speeds; excellent mobile signal
This second-floor, one-bedroom retirement apartment sits within the Gwenllian Morgan Court development, a short walk from Brecon town centre and the bus station. The block offers lift access, communal gardens, a surfaced parking courtyard and a 24-hour careline service — practical features for independent later living. The flat is chain-free and presented in neutral contemporary style, ready to move into.
The accommodation is compact (approximately 525 sq ft) and benefits from double glazing and electric storage heating. The setting gives semi-rural views towards the Brecon Beacons and communal outdoor space is maintained, reducing individual garden upkeep. A clear council-tax band and long lease (125 years from June 2004) make the tenure straightforward to assess.
Important considerations: the property is leasehold with age restrictions (minimum ages apply), and heating is by electric storage heaters rather than gas, which may affect running costs. The wider area records higher crime and significant deprivation indicators — buyers should check local services and personal security arrangements. Broadband speeds are average, though mobile signal is excellent.
This apartment suits buyers seeking a low-maintenance retirement base close to town amenities and countryside access. It offers practical communal facilities and parking, but purchasers should factor in leasehold terms, potential higher electricity costs, and the local area profile when deciding to view.
2 bedroom apartment for sale in Gwenllian Morgan Court, Heol Gousenou, Brecon, LD3 — £185,000 • 2 bed • 1 bath
2 bedroom flat for sale in Camden Court, Brecon, LD3 — £135,000 • 2 bed • 1 bath • 720 ft²
3 bedroom detached bungalow for sale in Pendre Gardens, Brecon, LD3 — £340,000 • 3 bed • 1 bath • 905 ft²
2 bedroom apartment for sale in Watton, Brecon, LD3 — £185,000 • 2 bed • 1 bath • 912 ft²
2 bedroom end of terrace house for sale in The Avenue, Brecon, LD3 — £200,000 • 2 bed • 1 bath • 722 ft²
2 bedroom apartment for sale in Hoggan Park, Brecon, LD3 — £205,000 • 2 bed • 1 bath • 1282 ft²


























































