Quiet, convenient flat close to town amenities and communal facilities.
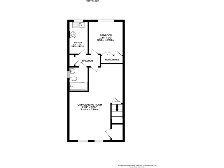
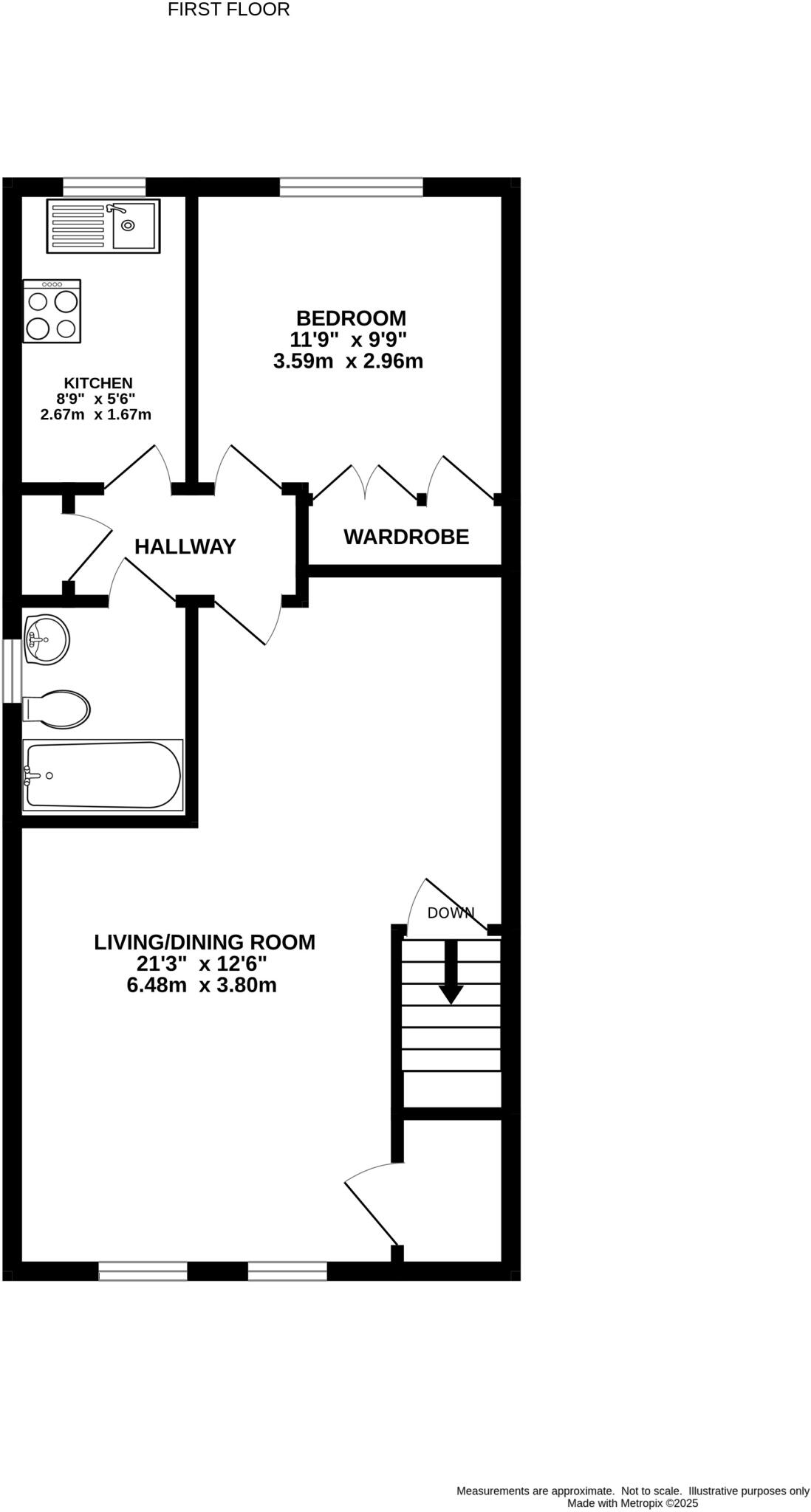
First-floor maisonette with stair lift for assisted access
A compact first-floor maisonette designed for independent retirement living within a well-maintained low-density development. The flat is small (approx 427 sq ft) but well laid out with a lounge/dining area, bedroom with built-in wardrobes, kitchen and bathroom. A stair lift is in place to assist access.
Residents benefit from communal facilities including a lounge, laundry room and a rentable guest suite, plus generous communal grounds (around six acres) and plentiful off-street parking. The location is highly convenient — roughly a quarter-mile to Waitrose and close to the town centre, doctors’ surgery and railway station.
Practical points to note: heating is by electric storage heaters and main fuel is electricity; the service charge is £2,151 pa (£179.25 pcm). On each resale the freeholder grants a new 99-year lease. The freeholder requires buyers to complete a questionnaire and may ask for a medical certificate before legal work can begin.
This property suits a downsizer or retiree seeking a low-maintenance home near town amenities with communal support and social facilities. It offers immediate occupation potential but limited living space and ongoing service charges that should be factored into affordability.
2 bedroom retirement property for sale in Acorn Drive, Wokingham, Berkshire, RG40 1EQ, RG40 — £235,000 • 2 bed • 1 bath • 580 ft²
1 bedroom retirement property for sale in Acorn Drive, Wokingham, Berkshire, RG40 1EU, RG40 — £175,000 • 1 bed • 1 bath • 539 ft²
2 bedroom apartment for sale in Acorn Drive, Wokingham, RG40 — £220,000 • 2 bed • 1 bath • 582 ft²
2 bedroom apartment for sale in Acorn Drive, Wokingham, Berkshire, RG40 — £230,000 • 2 bed • 1 bath • 585 ft²
1 bedroom retirement property for sale in St Christophers Gardens, Ascot, Berkshire SL5 8LZ, SL5 — £145,000 • 1 bed • 1 bath • 498 ft²
1 bedroom apartment for sale in Acorn Drive, Wokingham, RG40 — £135,000 • 1 bed • 1 bath • 571 ft²


















































