Compact, move-in ready flat for cash buyers or investors near theatre and transport links.
Newly renovated throughout, modern fixtures and flooring
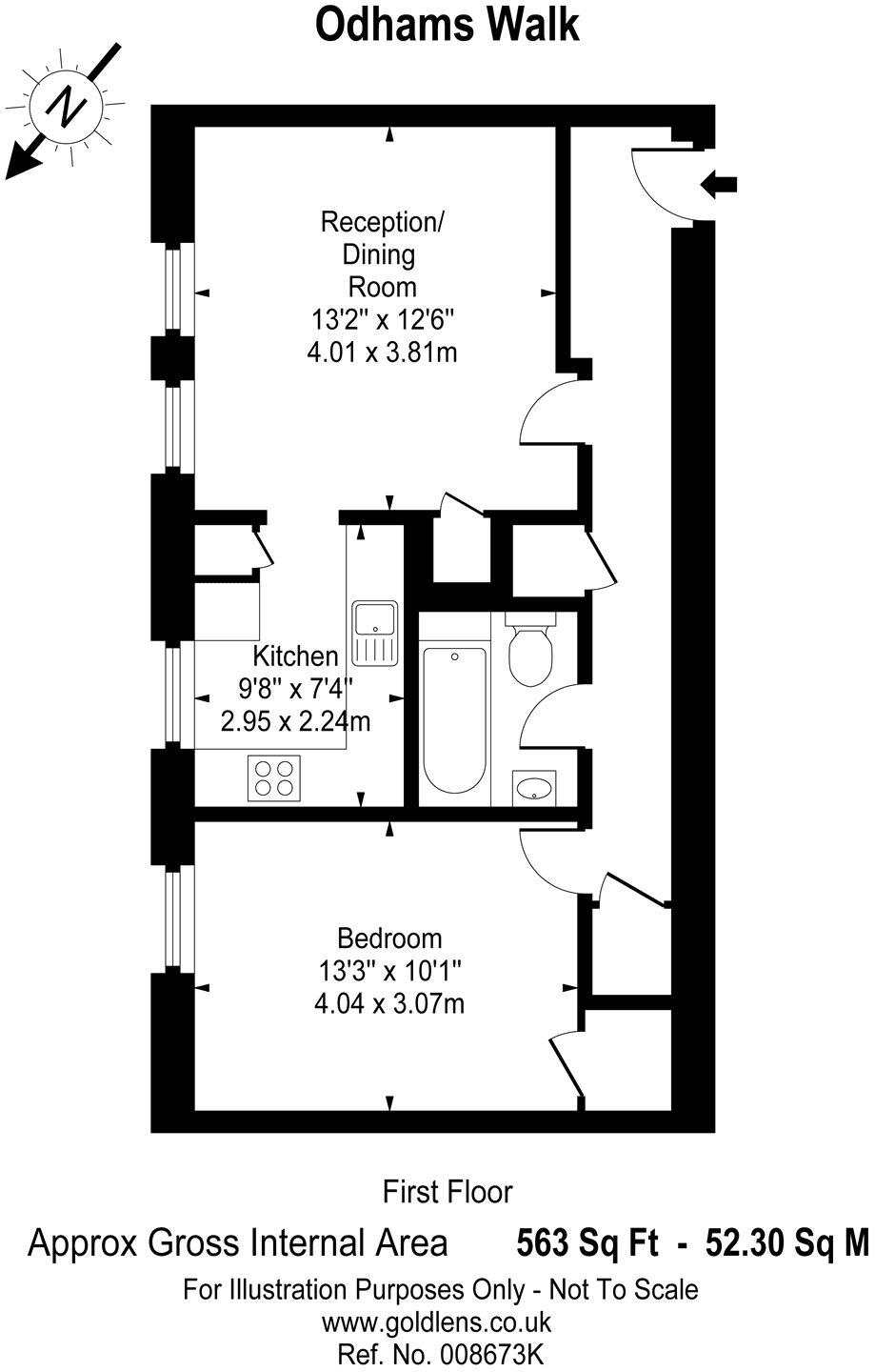
A newly renovated one-bedroom apartment moments from Covent Garden’s theatres and amenities, presented in clean, contemporary condition. The open-plan reception and separate bedroom make efficient use of 563 sq ft — a compact central city home or short-term-let candidate for a buyer who can purchase without standard mortgage lending.
The block is purpose-built with lift access and a solid-brick exterior; the flat benefits from gas central heating, double glazing and modern finishes throughout. It sits on a quiet stretch of Odhams Walk yet is an easy walk to Leicester Square and Covent Garden stations, restaurants and shops.
Important practical points are clear: the lease has only around 48 years remaining and many mortgage lenders will refuse to lend without a lease extension. Service charge and council tax are significant running costs and the area records very high local crime and very high deprivation — factors to weigh for lettings or resale.
This property suits a cash buyer, a local investor prepared to extend the lease, or someone looking for an immediately move-in, central pied-à-terre. The value drivers are location and condition; the primary downside is lease length and the associated financing and long-term resale considerations.
3 bedroom apartment for sale in Odhams Walk, London, WC2H — £760,000 • 3 bed • 1 bath • 838 ft²
1 bedroom flat for sale in Odhams Walk, Covent Garden, London, WC2H — £525,000 • 1 bed • 1 bath • 559 ft²
1 bedroom apartment for sale in Shorts Gardens, Covent Garden, London, WC2H — £700,000 • 1 bed • 1 bath • 625 ft²
1 bedroom flat for sale in Floral Street, London, WC2E — £700,000 • 1 bed • 1 bath • 564 ft²
1 bedroom flat for sale in Upper St. Martin's Lane, London, WC2H — £600,000 • 1 bed • 1 bath • 527 ft²
1 bedroom flat for sale in Bedford Street, Covent Garden WC2, WC2E — £850,000 • 1 bed • 1 bath • 430 ft²










































