Single-storey, wheelchair-friendly bungalow with garage, large gardens and no onward chain.
No onward chain — ready to move into
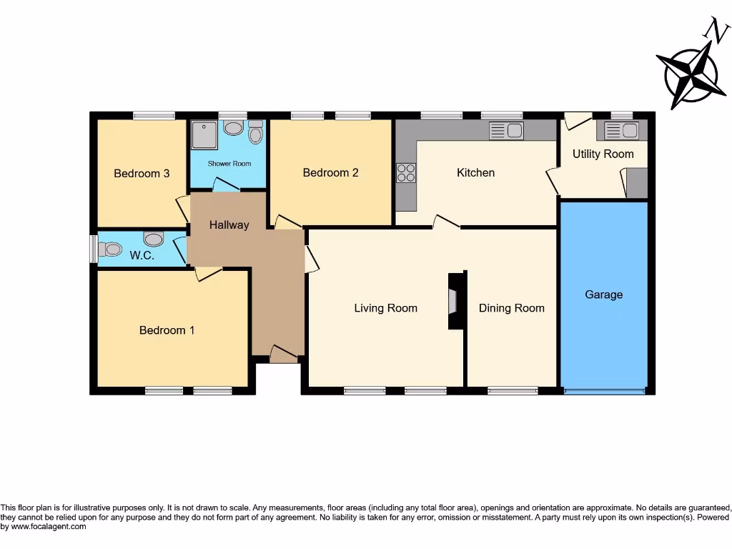
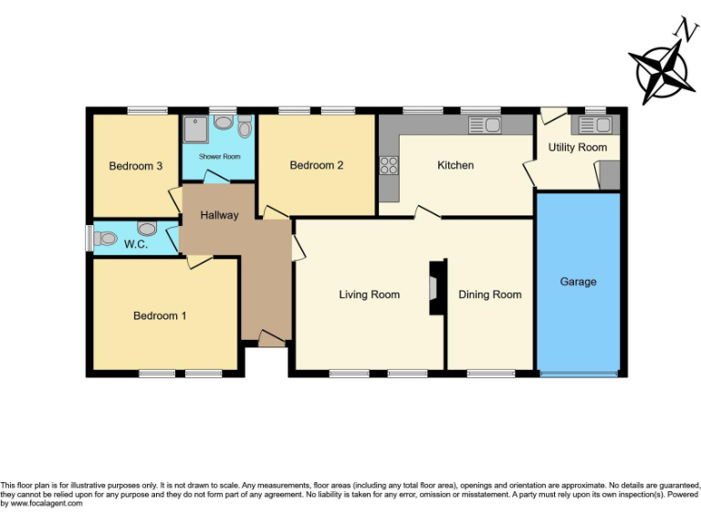
Quiet, single-storey living meets recent modernisation in this detached three-bedroom bungalow on a cul-de-sac in Boncath. Recently refurbished throughout with new carpets and an air source heat pump, the home is ready to occupy and benefits from level, wheelchair-friendly access — a strong choice for those seeking easier, low-step living without immediate work required.
Set on a large plot, the property offers generous front and rear gardens, private driveway parking and a garage with power and an electric roller shutter. The rear garden includes a vegetable patch and mature trees for privacy, creating space for gardening, outdoor relaxation or easy entertaining. Internal accommodation includes a living room with stone feature fireplace, separate dining area, practical kitchen and utility room, plus three bedrooms, a modern shower room and a separate W.C.
Practical strengths include no onward chain, freehold tenure, fast broadband, excellent mobile signal and mains services. The bungalow sits within walking distance of local amenities in a small village setting and offers straightforward access to nearby towns and the Pembrokeshire coast for leisure.
Notable considerations: the home is in a remoter, very deprived rural area which may limit some local services and resale appeal for certain buyers. The property has a single shower room (plus separate W.C.) which could be a drawback for some households. Overall size is average at about 1,048 sq ft — comfortable but not expansive.
This bungalow will suit buyers seeking a low-maintenance, single-level home in a quiet village with outdoor space and modern heating, particularly downsizers or those needing ground-floor accessibility.
3 bedroom bungalow for sale in Blaenffos, Boncath, SA37 — £280,000 • 3 bed • 2 bath • 646 ft²
3 bedroom bungalow for sale in Blaenwaun, Whitland, Carmarthenshire, SA34 — £267,500 • 3 bed • 2 bath • 1217 ft²
3 bedroom bungalow for sale in Bryngwyn, Newcastle Emlyn, Ceredigion, SA38 — £299,950 • 3 bed • 2 bath • 1292 ft²
3 bedroom bungalow for sale in Dolwerdd Estate, Penparc, Cardigan, SA43 — £227,000 • 3 bed • 1 bath • 809 ft²
2 bedroom bungalow for sale in Lon yr Ysgol, Blaenporth, Cardigan, SA43 — £315,000 • 2 bed • 1 bath • 905 ft²
3 bedroom detached bungalow for sale in Bowls Road, Blaenporth, Cardigan, SA43 — £335,000 • 3 bed • 2 bath • 2620 ft²














































































