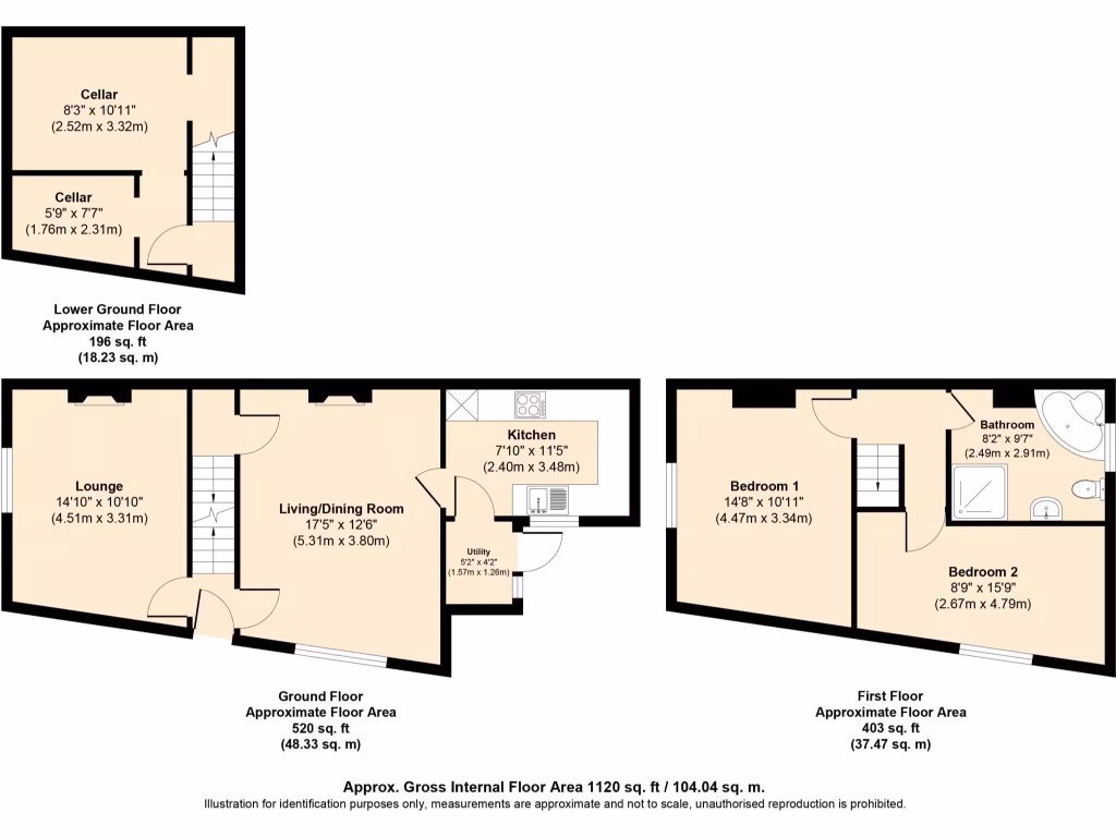
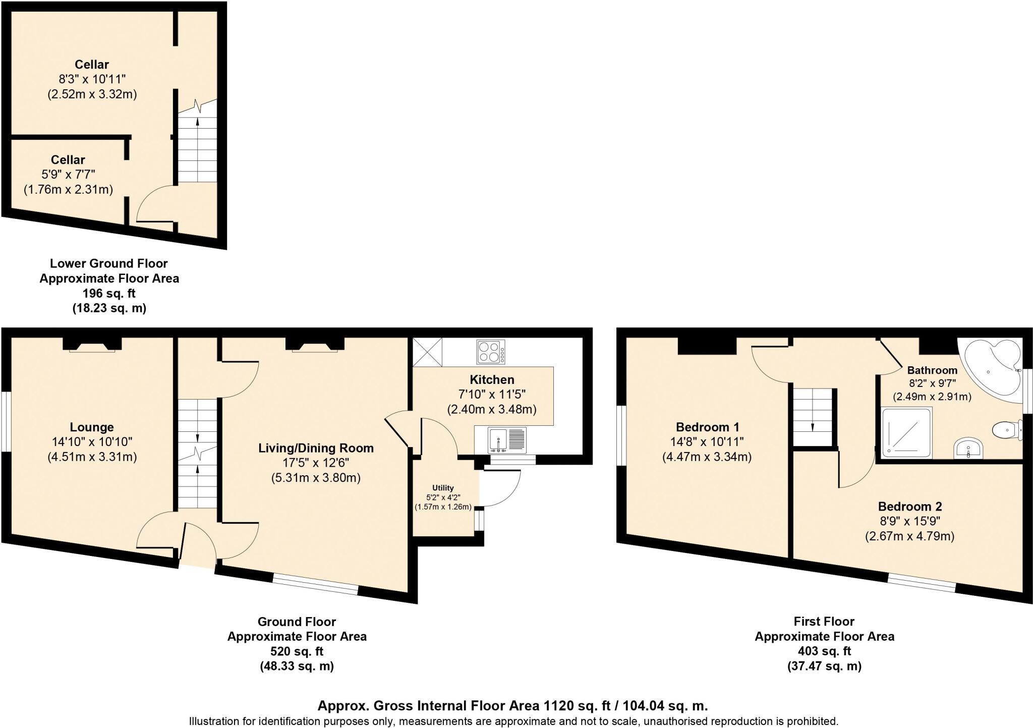
Extended Victorian end-terrace with two double bedrooms
Large lounge plus separate dining/family room
Modern extended kitchen and utility room
Generous 1,120 sq ft plus large cellar for storage
Private driveway, single garage and large lawned garden
Leasehold tenure — check lease length and charges
Located in a deprived area; local amenities and transport good
Some nearby schools have mixed Ofsted ratings; inspect cellar for issues
This extended Victorian end-terrace offers generous living space across 1,120 sq ft with two double bedrooms and two reception rooms — ideal for first-time buyers or young families seeking room to grow. The modern extended kitchen with adjacent utility, large lounge and separate dining/living room give practical everyday flow, while a four-piece bathroom serves the layout well.
Outside, a private driveway, single garage and a large lawned garden with paved patio deliver useful off-street parking and outdoor space. The low-maintenance paved rear yard and sizeable cellar add storage and scope for adaptation; the property benefits from gas central heating and double glazing throughout.
Practical considerations: the home is leasehold and located in a generally deprived ward, so prospective buyers should check lease terms and local investment plans. Some nearby schools have mixed Ofsted outcomes; careful local school research is recommended. The large cellar should be inspected for damp or structural issues before purchase.
Overall, this sturdy period terrace combines traditional character with contemporary updates and strong transport links to Castleton station and the M62/M66 — an affordable, well-sized home with clear potential to personalise and improve.



























































































