Large freehold building plot with planning for two homes in sought-after Bozeat village..
1. Freehold 1.14-acre plot in sought-after Bozeat village
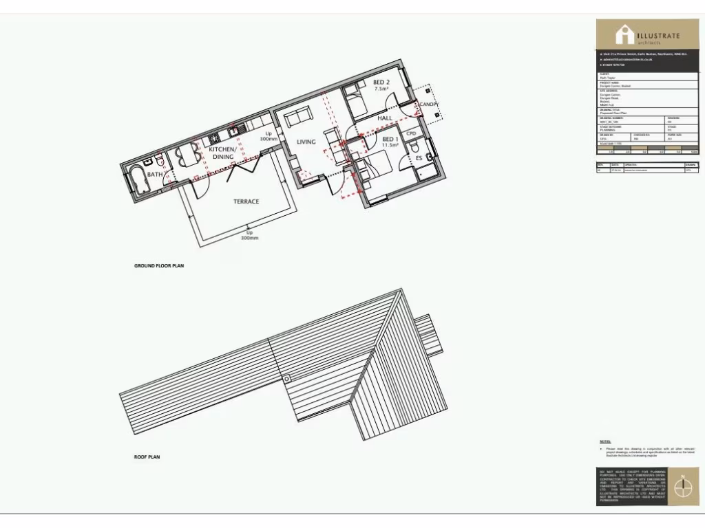
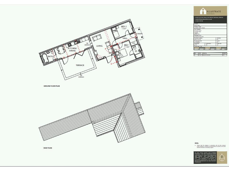
2. Full planning for 5-bed detached house (338 sqm / 3,638 sq ft)
3. Full planning to convert barn into a 2-bed dwelling
4. No flood risk; fast broadband; low local crime
5. Existing on-site dwelling is derelict — demolition required
6. Rural/town-fringe location; mobile signal average
7. Affluent area with several highly rated nearby schools
8. Viewing ground uneven; suitable footwear advised
A rare 1.14-acre freehold development plot on the edge of Bozeat with full planning permission for two dwellings — a new 5-bedroom detached house (338 sqm / 3,638 sq ft) and conversion of the existing barn into a two-bedroom home. The site sits in a sought-after, affluent village setting with fast broadband, low crime and no flood risk.
This opportunity suits a self-build buyer or investor wanting a large plot with consent in place. The planning references (NW/23/00378/FUL for the house and NW/24/00160/FUL for the barn) are available via North Northamptonshire Council. The scale of the plot and the granted consents reduce speculative risk and shorten the lead time compared with obtaining new permission.
Buyers should note the existing dwelling on-site is derelict; entering the building is not recommended and is at your own risk. The condition of the structure means demolition, site clearance, and associated costs will be required before construction or conversion work can begin. Access across rural ground may be uneven — suitable footwear is advised when viewing the land.
Local amenities include highly regarded primary and secondary schools nearby, and the plot occupies a small town / town-fringe location popular with countryside commuters. The site represents large-scale development potential in a low-risk, high-demand rural area, but purchasers should factor in demolition, remediation and implementation costs when assessing overall viability.
Land for sale in Harrold Road, Bozeat, Wellingborough, NN29 — £450,000 • 1 bed • 1 bath • 3500 ft²
Land for sale in Hinwick Road, Wollaston., NN29 — £450,000 • 1 bed • 1 bath • 13939 ft²
Land for sale in Irchester Grange Farm, Farndish Road, Irchester NN29 7HL, NN29 — £1,000,000 • 1 bed • 1 bath
Plot for sale in Bozenham Mill Road, Ashton, Northamptonshire, NN7 — £285,000 • 1 bed • 1 bath • 2023 ft²
3 bedroom detached house for sale in London Road, Bozeat, Wellingborough, NN29 — £350,000 • 3 bed • 2 bath • 1775 ft²
Land for sale in Kings Lane, Little Harrowden, NN9 5BL, NN9 — £1,000,000 • 4 bed • 1 bath • 7640 ft²






























