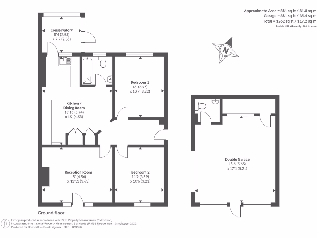
**Standout Features:**
- Spacious semi-detached bungalow with potential for renovation
- South-facing living room with direct access to the garden
- Two double bedrooms and a kitchen with dining area
- Conservatory that opens to the garden
- Impressive double garage and off-road parking options
- Available chain-free for immediate occupancy
- Situated within St Bart’s School catchment area
***Summary:***
Located in an affluent cul-de-sac in South Newbury, this sizable two-bedroom bungalow offers an ideal canvas for first-time buyers, small families, or investors looking for rental potential. With its south-facing living room that opens directly into the garden and a sunny conservatory, this home is perfect for those who appreciate outdoor living. The spacious double garage adds valuable utility, while the front garden presents further off-road parking options.
While the mid-century kitchen might require a fresh update, the property's generous layout—totaling 1,262 square feet—affords plenty of room for creativity and customization. Situated just moments away from well-rated schools, parks, and local amenities, this home epitomizes comfort and convenience. Don't miss your chance to own this promising property; with no onward chain, it could be yours in no time.
2 bedroom semi-detached bungalow for sale in Rokeby Close, Newbury, RG14 7EU, RG14 — £385,000 • 2 bed • 1 bath • 824 ft²
2 bedroom detached bungalow for sale in Newbury, Berkshire, RG14 — £450,000 • 2 bed • 1 bath • 1517 ft²
3 bedroom detached bungalow for sale in Paddock Road, Newbury, RG14 7DL, RG14 — £485,000 • 3 bed • 1 bath • 878 ft²
4 bedroom bungalow for sale in Abbey Close, Newbury, RG14 — £550,000 • 4 bed • 2 bath • 1113 ft²
2 bedroom bungalow for sale in Wendan Road, Newbury, RG14 — £575,000 • 2 bed • 2 bath • 1532 ft²
3 bedroom detached bungalow for sale in Enborne Road, Newbury, RG14 6AG, RG14 — £550,000 • 3 bed • 1 bath • 1163 ft²














































































