Renovator’s opportunity near Abbeydale Road amenities and parking.
Victorian end-terrace with period bay window and red-brick facade
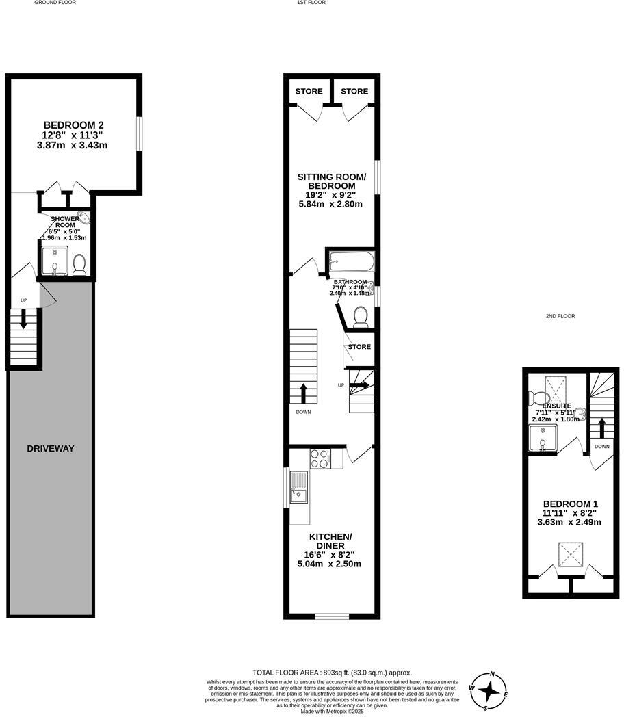
Off-street parking and external store—rare for terraces in area
Long lease (~262 years) with nominal ground rent (£9 pa)
Currently 2 beds; loft rooms not to modern regs (requires upgrades)
No garden; external space limited
Needs full renovation: dated kitchen, electric room heaters, EPC E41
For sale by auction—buyer fees, reservation fee and pack apply
No onward chain; strong post-renovation investor potential
This unusual end-terrace offers a compact, period home with clear upside for an investor or DIY buyer. The building has Victorian character—bay window and red-brick facade—and benefits from off-road parking and an external store, rare for terraces in the area. The current layout provides two main bedrooms and a dining-kitchen, with additional loft accommodation that could become a proper third bedroom if brought up to building regulations.
The property is being sold by Modern Method of Auction; buyers should budget for the auction reservation fee and the buyer information pack. The house requires modernisation throughout: the kitchen and general decor are dated, heating is electric room heaters, and some internal wall/ceiling repairs are visible. The EPC is E (41) and the house will need investment to improve energy efficiency and comfort.
Key positives are the long lease (approx. 262 years remaining), nominal ground rent (£9 pa), no onward chain, off-street parking, and strong post-renovation rental or resale potential given the nearby Abbeydale Road amenities. Material drawbacks include no garden, loft rooms currently non-compliant with regs (so currently a two-bed), auction sale charges/fees, electric-only heating, and the need for full refurbishment to modern standards.
Suitable buyers are hands-on investors or renovators who understand auction purchase mechanics and additional fees. If planning mortgage finance, arrange lender checks before bidding and expect to commission works to legalise the loft rooms and upgrade heating and insulation to increase value and reduce running costs.
 2 bedroom terraced house for sale in Thirlmere Road, Sheffield, South Yorkshire, S8 — £130,000 • 2 bed • 1 bath • 754 ft²
 2 bedroom terraced house for sale in Thirlmere Road, Sheffield, South Yorkshire, S8 — £130,000 • 2 bed • 1 bath • 754 ft² 1 bedroom terraced house for sale in Meadow Terrace, Sheffield, South Yorkshire, S11 — £170,000 • 1 bed • 1 bath • 569 ft²
 1 bedroom terraced house for sale in Meadow Terrace, Sheffield, South Yorkshire, S11 — £170,000 • 1 bed • 1 bath • 569 ft² 3 bedroom terraced house for sale in Wayland Road, Sheffield, South Yorkshire, S11 — £225,000 • 3 bed • 1 bath • 1361 ft²
 3 bedroom terraced house for sale in Wayland Road, Sheffield, South Yorkshire, S11 — £225,000 • 3 bed • 1 bath • 1361 ft² 3 bedroom terraced house for sale in 27 Mount Street, Sharrow, Sheffield, South Yorkshire, S11 8DJ, S11 — £100,000 • 3 bed • 1 bath • 872 ft²
 3 bedroom terraced house for sale in 27 Mount Street, Sharrow, Sheffield, South Yorkshire, S11 8DJ, S11 — £100,000 • 3 bed • 1 bath • 872 ft² 3 bedroom terraced house for sale in Rydal Road, Sheffield, S8 — £189,000 • 3 bed • 2 bath • 892 ft²
 3 bedroom terraced house for sale in Rydal Road, Sheffield, S8 — £189,000 • 3 bed • 2 bath • 892 ft² 3 bedroom terraced house for sale in Bickerton Road, Sheffield, S6 — £110,000 • 3 bed • 1 bath • 926 ft²
 3 bedroom terraced house for sale in Bickerton Road, Sheffield, S6 — £110,000 • 3 bed • 1 bath • 926 ft²










































