ME9 7NQ - 3 bedroom terraced house for sale in Bramley Close, Newingt…

View on Property Piper

3 bedroom terraced house for sale in Bramley Close, Newington, Sittingbourne, ME9

Summary - 5 BRAMLEY CLOSE NEWINGTON SITTINGBOURNE ME9 7NQ

3 bed 1 bath Terraced

Practical three-bedroom terrace with conservatory and easy rail links for families.
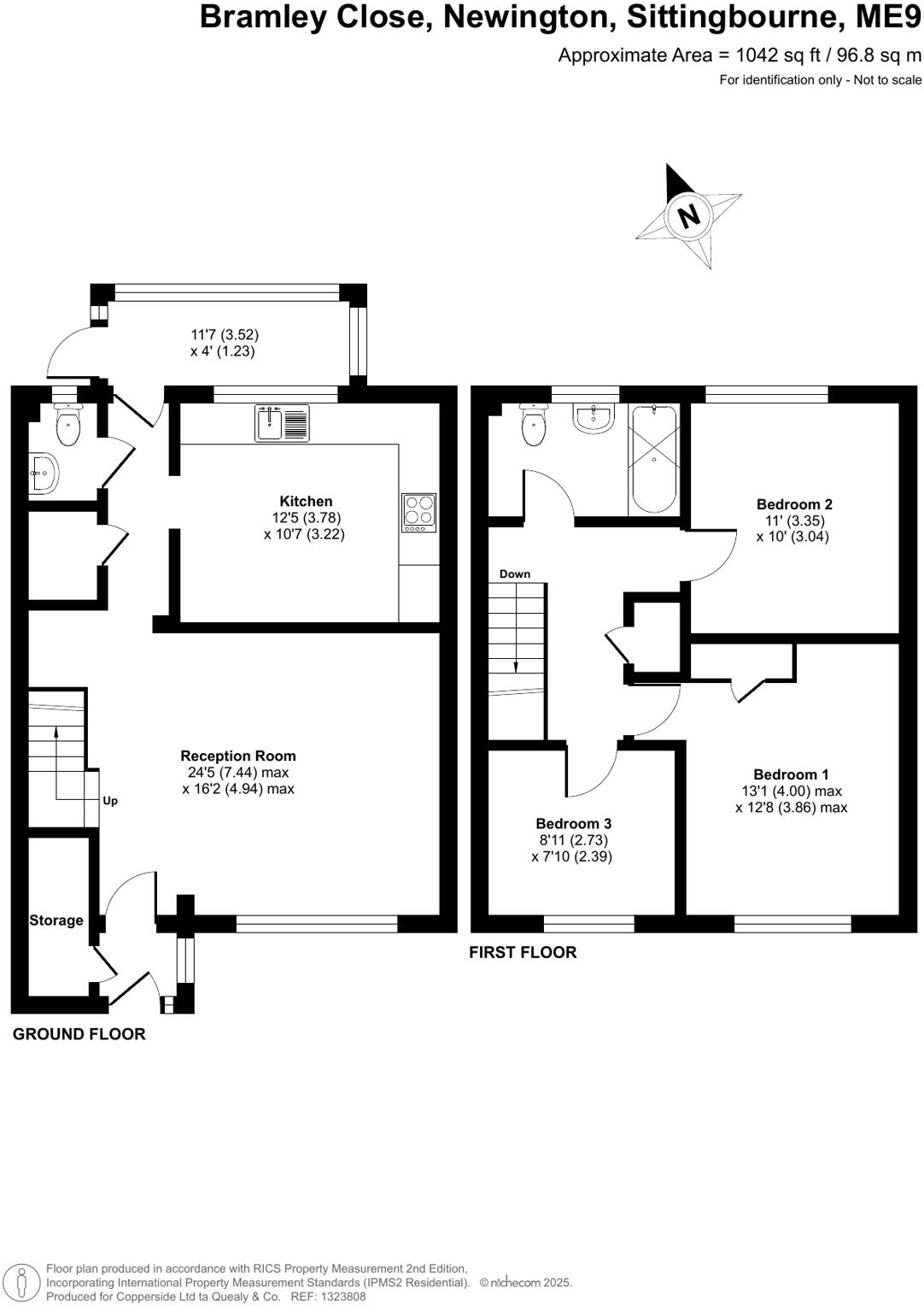
- Approximately 1,042 sq.ft of living space
- Three bedrooms, one family bathroom, ground-floor WC
- Conservatory extends liveable space
- Walking distance to Newington mainline railway station
- Freehold tenure, mains gas central heating, double glazing
- Cavity walls assumed uninsulated — potential energy upgrades needed
- Small rear garden; low maintenance but limited outdoor space
- Slow broadband and area classed as more deprived than average
Set in Newington village, this mid-20th-century three-bedroom terrace offers practical family living within walking distance of the mainline railway station. The house provides about 1,042 sq.ft of accommodation arranged over two floors: entrance porch, ground-floor WC, fitted kitchen, large lounge, conservatory and a modern family bathroom. A low-maintenance rear garden and private front area add useful outdoor space for children or easy entertaining.

The property is offered freehold and benefits from double glazing (fitted since 2002), mains gas central heating and a contemporary bathroom. Its size and layout suit first-time buyers or young families looking for straightforward, ready-to-move-in accommodation close to a primary school and local shops. The conservatory increases useful living space and the location gives a direct commuter link to nearby towns.

There are some practical issues to note. The terrace was constructed in the 1950s–1960s and the cavity walls are assumed to have no insulation, which may affect energy bills and could need upgrading. Broadband speeds in the area are slow. The plot is relatively small and the area is classed as more deprived than average, with average local crime levels — factors to weigh against the location and price.

Overall this is a sensible family home with commuter convenience and scope for energy-efficiency improvements. It suits buyers wanting a modernised, modestly sized house in a village setting, with clear potential to add value through targeted upgrades.

Property Details

Brochure Descriptions

Image Descriptions

Floorplan Description

Rooms

Textual Property Features

Target Audience

AI Tags

Detected Visual Features

EPC Details

Nearby Schools

Nearest Bars And Restaurants

,,,,}

Nearest General Shops

,,}

Nearest Grocery shops

,,}

Nearest Supermarkets

,,}

Nearest Religious buildings

,,}

Nearest Medical buildings

,,,}

Nearest Airports

,}

Nearest Leisure Facilities

,,,,}

Nearest Tourist attractions

,,}

Nearest Train stations

,,,,}

Nearest Bus stations and stops

,,,,}

Nearest Hotels

,,}

Tags

Local Market Stats

Similar Properties

Meta

High Res Images

Compatible Images

Low res Images

Thumbnails

Raw Images

High Res Floorplan Images

Compatible Floorplan Images

Low res Floorplan Images

FloorplanImages Thumbnail

Raw Floorplan Images