**Standout Features:**
- Three spacious bedrooms and two modern bathrooms.
- Private balcony with lovely views.
- Exclusive amenities: 24-hour concierge, pool, spa, residents' gym, and rooftop terrace.
- Open-plan living area with contemporary design.
- Built in 2013 with comfort cooling.
**Potential Concerns:**
- Service charge of £8,000 per year (above average).
- Ground rent is on the higher side at £1,000 per year.
- The local area has a high crime rate.
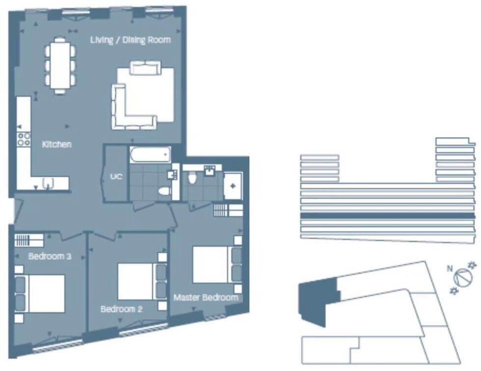
This stunning three-bedroom, two-bathroom apartment in the sought-after Postmark development offers a luxurious urban lifestyle with an abundance of natural light and modern amenities. Ideal for professionals and families alike, the open-plan kitchen seamlessly flows into a bright living space, accentuated by floor-to-ceiling windows that lead to a private balcony. Enjoy the convenience of built-in storage and a primary suite with an en-suite bathroom for added luxury.
The exceptional resident facilities include a state-of-the-art gym, swimming pool, sauna, and a beautifully landscaped rooftop terrace, providing a perfect retreat right at home. However, potential buyers should consider the higher service charge and ground rent, which may impact the overall investment value.
Located in a vibrant part of central London, this apartment ensures easy access to Chancery Lane Underground Station and top-rated schools, making it perfect for both living and investment. Don't miss out on this opportunity to secure an impressive home in a leading development—opportunities like this are rare in the area and may not be available for long!
2 bedroom apartment for sale in Postmark, Monograph Square, WC1X , WC1X — £1,580,000 • 2 bed • 2 bath • 958 ft²
1 bedroom flat for sale in Truro House, Mount Pleasant, London, Greater London, WC1X — £960,000 • 1 bed • 1 bath • 656 ft²
3 bedroom apartment for sale in Jubilee Walk, London, WC1X — £1,450,000 • 3 bed • 2 bath • 1065 ft²
2 bedroom apartment for sale in Mount Pleasant, Chancery Lane, WC1X , WC1X — £1,299,995 • 2 bed • 2 bath • 775 ft²
2 bedroom apartment for sale in 4
Mount Pleasant
London
WC1X 0BU, WC1X — £1,487,000 • 2 bed • 1 bath • 861 ft²
1 bedroom property for sale in Greenford House, 2 Jubilee Walk, Bloomsbury, London, WC1X — £850,000 • 1 bed • 1 bath • 592 ft²














































