**Elms Field Farm – The Chestnut**
**Standout Features:**
- Newly built two-bedroom semi-detached house
- 40% shared ownership at an attractive price of £96,000
- Off-street parking and a private garden
- Energy-efficient with solar panels and EV charging points
- Located in a family-friendly, suburban community
Take advantage of this exclusive opportunity to own the last of this highly sought-after house type at Elms Field Farm! This superb two-bedroom home is perfect for first-time buyers or small families seeking a modern living space with a community feel. Built using sustainable construction methods, this eco-friendly property not only features energy-efficient highlights such as solar panels and air-source heat pumps but also fosters a vibrant neighborhood with green spaces, wildflower meadows, and planned public art installations.
Situated just 4.5 miles from Coventry city center, the location offers easy access to shopping, schools, and transport links, while giving you your own slice of tranquil suburbia. The inviting garden and off-street parking enhance the home's appeal, ensuring comfort and convenience.
However, potential buyers should be mindful of the area’s crime rate, which is above average, so a careful consideration of personal safety is advised. With limited availability at this price point, don't miss your chance to secure this remarkable property! Schedule your viewing today and envision your future in this contemporary home.
2 bedroom semi-detached house for sale in Flora Road, Coventry, CV2 — £96,000 • 2 bed • 1 bath
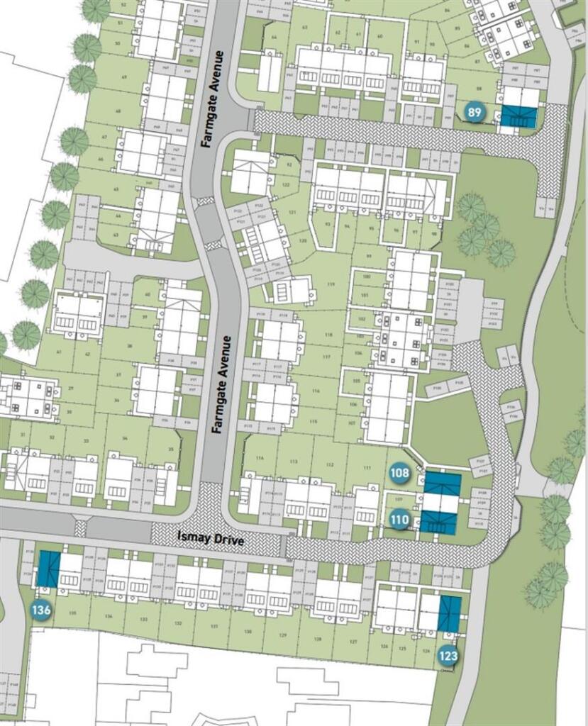
2 bedroom semi-detached house for sale in Ismay Drive, Coventry, CV2 — £96,000 • 2 bed • 1 bath
3 bedroom semi-detached house for sale in Ismay Drive, Coventry, CV2 — £116,000 • 3 bed • 1 bath
3 bedroom semi-detached house for sale in Ismay Drive, Coventry, CV2 — £116,000 • 3 bed • 1 bath
3 bedroom end of terrace house for sale in Ismay Drive, Coventry, CV2 — £120,000 • 3 bed • 1 bath • 754 ft²
2 bedroom terraced house for sale in Willow Grove, Allesley, Coventry, West Midlands, CV5 — £106,800 • 2 bed • 1 bath






















