Move-in ready modern house with garage, garden and nearby good schools.
Built 2022 with EPC B and modern gas central heating
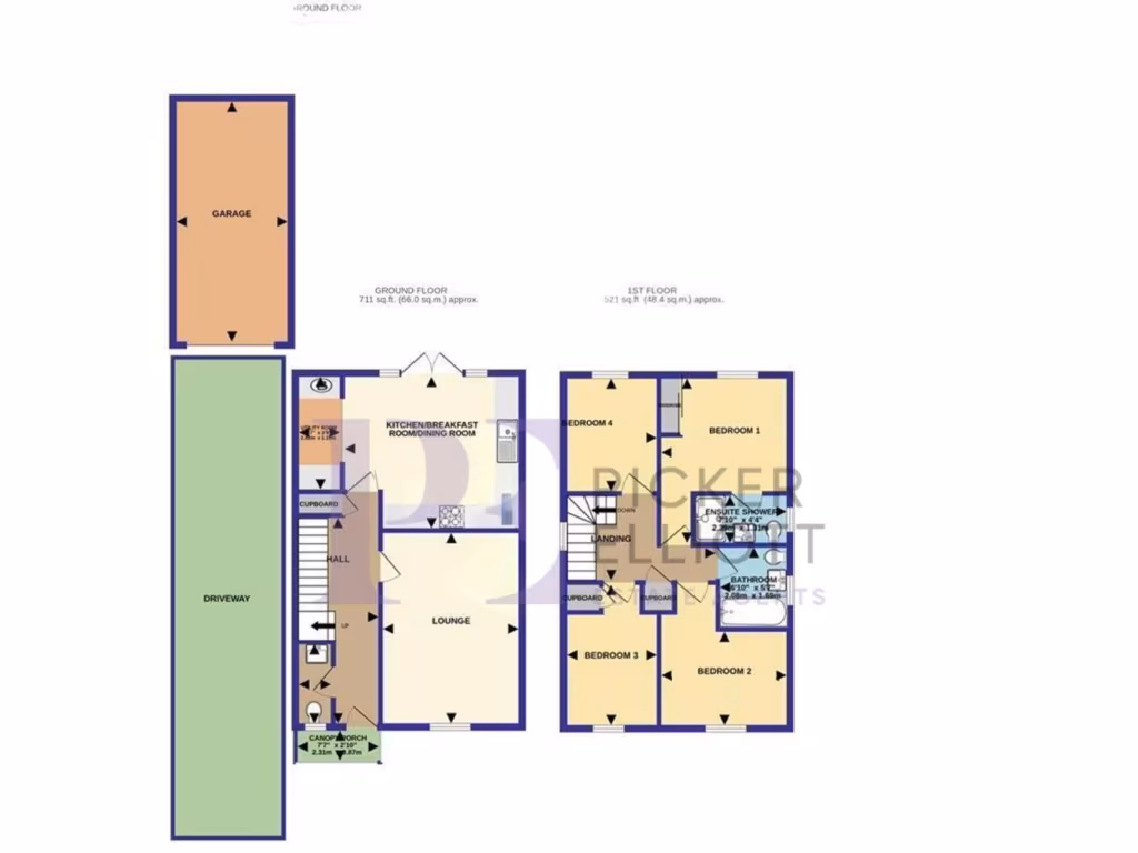
Four well-proportioned bedrooms and two bathrooms
Downstairs WC and separate utility room for convenience
Good-sized rear garden but overall plot is small
Tarmac drive to detached garage with power and storage
Freehold tenure; no flood risk, fast broadband, excellent mobile
Approximately 1,232 sq ft — average overall size
Council tax rated moderate; manageable running costs
A contemporary four-bedroom detached home built in 2022, offering practical family living across two storeys. The ground floor includes a downstairs WC and a utility room, while upstairs provides four well-proportioned bedrooms and two bathrooms. At about 1,232 sq ft, the layout balances living space with manageable maintenance.
The rear garden is a good size for outdoor play and socialising, and a tarmac drive leads to a detached garage with power and roof storage. Modern comforts include mains gas boiler and radiators, double glazing and an EPC rating of B, supporting efficient everyday running costs.
Positioned in a very affluent area with fast broadband and excellent mobile signal, the property is freehold and sits in a small plot. Nearby primary and secondary schools have generally good Ofsted ratings, making this house convenient for families.
Practical points to note: the plot is small, so outside space is modest for a detached house; council tax is moderate. The property presents as a modern, move-in-ready home with straightforward upkeep rather than a large garden or extensive grounds.
4 bedroom detached house for sale in Fieldfare Road, Hinckley, LE10 — £350,000 • 4 bed • 2 bath • 1008 ft²
4 bedroom detached house for sale in Lapwing Drive, Hinckley, LE10 — £425,000 • 4 bed • 3 bath • 1296 ft²
4 bedroom detached house for sale in Murray Close, Broughton Astley, Leicester, LE9 — £399,950 • 4 bed • 2 bath • 1123 ft²
4 bedroom detached house for sale in Normandy Way, Hinckley,
Leicester,
LE10 — £410,000 • 4 bed • 1 bath
4 bedroom detached house for sale in Rieth Close, Hinckley, LE10 — £380,000 • 4 bed • 2 bath • 1350 ft²
4 bedroom detached house for sale in Thruxton Close, Hinckley, LE10 — £375,000 • 4 bed • 2 bath • 1271 ft²


































































