Turnkey three-bedroom terrace near village amenities, ready to move into.
New DPC with 10-year guarantee and full interior/exterior redecoration
New oil boiler and central heating, new fuse board, turnkey condition
Refitted kitchen and modern shower room, recent floor coverings throughout
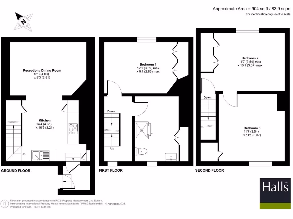
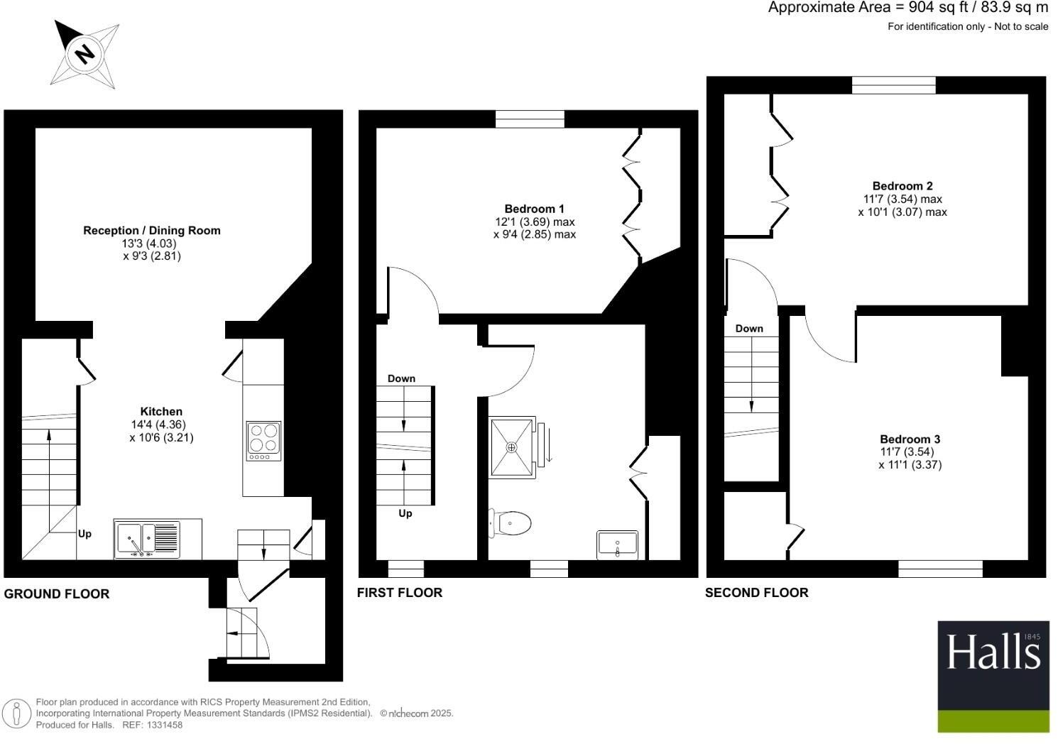
Three bedrooms across three storeys; single shower room only
Small paved rear courtyard garden with decked seating area
Stone walls likely uninsulated — possible future insulation work needed
Oil fuel stored on-site; running costs may be higher than gas/electric
Freehold, chain free sale; Council Tax Band B (low)
Step inside Cartrefle, a newly refurbished three-bedroom mid-terrace in the heart of Llanfair Caereinion. The house has been comprehensively upgraded — new DPC with a 10-year guarantee, new boiler and central heating, new fuse board, refitted kitchen and shower room, and fresh floor coverings — so it presents as a mostly turn-key home for a first-time buyer or buy-to-let investor.
Ground-floor living is practical with a comfortable lounge opening to a modern kitchen/diner and a useful rear porch that leads to a paved courtyard and decked seating area. The principal bedroom and refurbished shower room sit on the first floor, with two further generous bedrooms above. At about 904 sq ft, the layout makes efficient use of space across three storeys.
There are some practical points to note: heating is from an oil-fired boiler (private tank), and the stone walls are assumed uninsulated — so running costs and future insulation work should be factored in. The rear garden is small and courtyard-style, typical of town terraces. The property is offered freehold and chain free, with low council tax (Band B).
The village location places day-to-day amenities, a churchyard view and community facilities within an easy walk. Broadband speeds are average while mobile signal is excellent. The surrounding area is classed as remoter and shows higher levels of deprivation, which may influence long-term resale or lettings, but the very low local crime rate and recent high-standard refurbishment strengthen the property’s appeal.
2 bedroom terraced house for sale in Market Street, Llanfyllin, SY22 — £145,000 • 2 bed • 1 bath • 700 ft²
3 bedroom semi-detached house for sale in Parc Hafod, Tregynon, Newtown, Powys, SY16 — £235,000 • 3 bed • 2 bath • 766 ft²
3 bedroom terraced house for sale in Bryn Street, Newtown, Powys, SY16 — £144,500 • 3 bed • 1 bath • 829 ft²
3 bedroom terraced house for sale in Glanrafon, Llanwddyn, SY10., SY10 — £218,000 • 3 bed • 1 bath • 746 ft²
3 bedroom terraced house for sale in Salop Road, Welshpool, Powys, SY21 7EF, SY21 — £125,000 • 3 bed • 1 bath
5 bedroom semi-detached house for sale in Bridge Street, Llanfair Caereinion, Welshpool, SY21 — £250,000 • 5 bed • 2 bath • 2939 ft²


















































































