Low‑maintenance retirement living close to town and transport links.
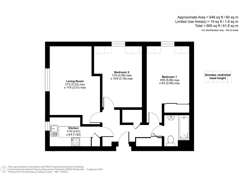
Two double bedrooms, second‑floor apartment (646 sq ft)
A well‑appointed two-bedroom second‑floor apartment in Andrews Lodge, a purpose-built retirement development a level walk from Lymington town centre. The apartment is presented in good order with a fitted kitchen, two double bedrooms and a living room that benefits from natural light. Practical storage cupboards in the hallway add useful space in an average-sized 646 sq ft layout.
Owners enjoy on-site support and communal facilities that suit independent retirees: a lodge manager five days a week, owners’ lounge with regular events, communal laundry, private car park and a 24‑hour Careline system for security. There is also a Guest Suite onsite and access to guest suites at other Churchill Living developments nationally, which is handy for visiting family.
Important practical points are clear: the property is leasehold with about 110 years remaining, an above‑average service charge of £4,183.81 per year and a ground rent of £679.90 per year (review due). Heating is electric storage heaters and the building uses air‑source heating; buyers should consider ongoing running costs compared with gas alternatives.
This apartment will suit someone seeking low‑maintenance retirement living close to shops, transport links and the Solent. It offers peace of mind through managed communal services but carries ongoing leasehold costs that should be factored into affordability and long‑term plans.
2 bedroom retirement property for sale in Andrews Lodge, Lymington, SO41 — £165,000 • 2 bed • 2 bath • 714 ft²
1 bedroom retirement property for sale in Andrews Lodge, Lymington, SO41 — £125,000 • 1 bed • 1 bath • 551 ft²
2 bedroom retirement property for sale in Andrews Lodge, Lymington, SO41 — £150,000 • 2 bed • 1 bath • 729 ft²
2 bedroom retirement property for sale in Knights Lodge, Lymington, SO41 — £430,000 • 2 bed • 2 bath • 860 ft²
2 bedroom apartment for sale in North Close, Lymington, SO41 — £499,950 • 2 bed • 2 bath
1 bedroom retirement property for sale in Knights Lodge, Lymington, SO41 — £330,000 • 1 bed • 1 bath • 624 ft²






































































