B31 4DR - 3 bedroom semidetached house for sale in Coney Green Drive,…

View on Property Piper

3 bedroom semi-detached house for sale in Coney Green Drive, Birmingham, West Midlands, B31

Summary - 51 Coney Green Drive B31 4DR

3 bed 2 bath Semi-Detached

**Standout Features:**
- Stunning three-bedroom semi-detached home in Austin Village
- Extended to the rear for spacious modern living
- High-spec upgrades throughout, including modern kitchen with built-in appliances
- En-suite master bedroom and two additional good-sized bedrooms
- Well-maintained with double glazing and central heating
- Decent-sized rear garden with views overlooking allotments
- Off-street parking for multiple vehicles
- Close to public transport links, shops, and schools

**Potential Concerns:**
- High crime rate in the area
- Solid brick walls with no insulation (assumed repair needed)
- Area classification indicates potential deprivation concerns

Discover the perfect blend of comfort and style with this beautifully presented semi-detached home, ideally suited for families eager to settle in a community-oriented neighborhood. This property features three spacious bedrooms, including a master with en-suite, along with an open-plan living area that seamlessly connects to a modern kitchen, designed for both convenience and entertainment. Enjoy abundant natural light from skylights, a low-maintenance garden, and off-street parking—a rare find in this desirable area.

While the home showcases contemporary amenities and living spaces, it's essential to note the local environment’s challenges, including high crime rates and the potential need for insulation improvements. Nevertheless, the proximity to well-rated schools and the affordability of council tax add excellent value for families and investors alike. Don't miss out on the chance to experience this exclusive property. Schedule your viewing today!

Property Details

Image Descriptions

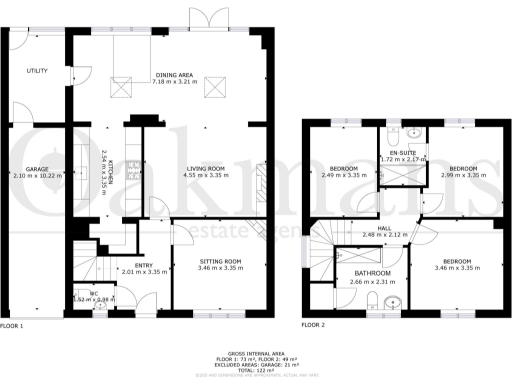
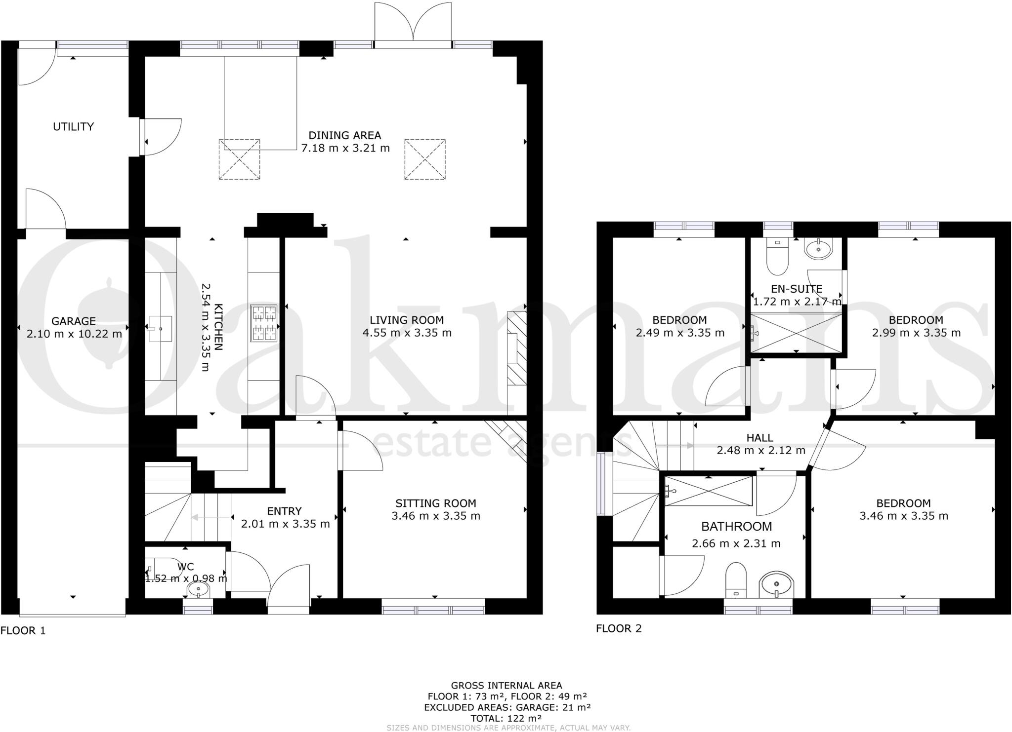
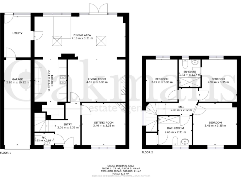
Floorplan Description

Rooms

Textual Property Features

Detected Visual Features

EPC Details

Nearby Schools

Nearest Bars And Restaurants

,,,,}

Nearest General Shops

,,}

Nearest Grocery shops

,,}

Nearest Supermarkets

,,}

Nearest Religious buildings

,,}

Nearest Medical buildings

,,,}

Nearest Airports

}

Nearest Leisure Facilities

,,,,}

Nearest Tourist attractions

,,}

Nearest Train stations

,,,,}

Nearest Bus stations and stops

,,,,}

Nearest Hotels

,,}

Tags

Local Market Stats

AirBnB Data

Similar Properties

Meta

High Res Images

Compatible Images

Low res Images

Thumbnails

Raw Images

High Res Floorplan Images

Compatible Floorplan Images

Low res Floorplan Images

FloorplanImages Thumbnail

Raw Floorplan Images