Spacious three-bedroom period house with garage and excellent school links close by.
- Three bedrooms in a period semi-detached home
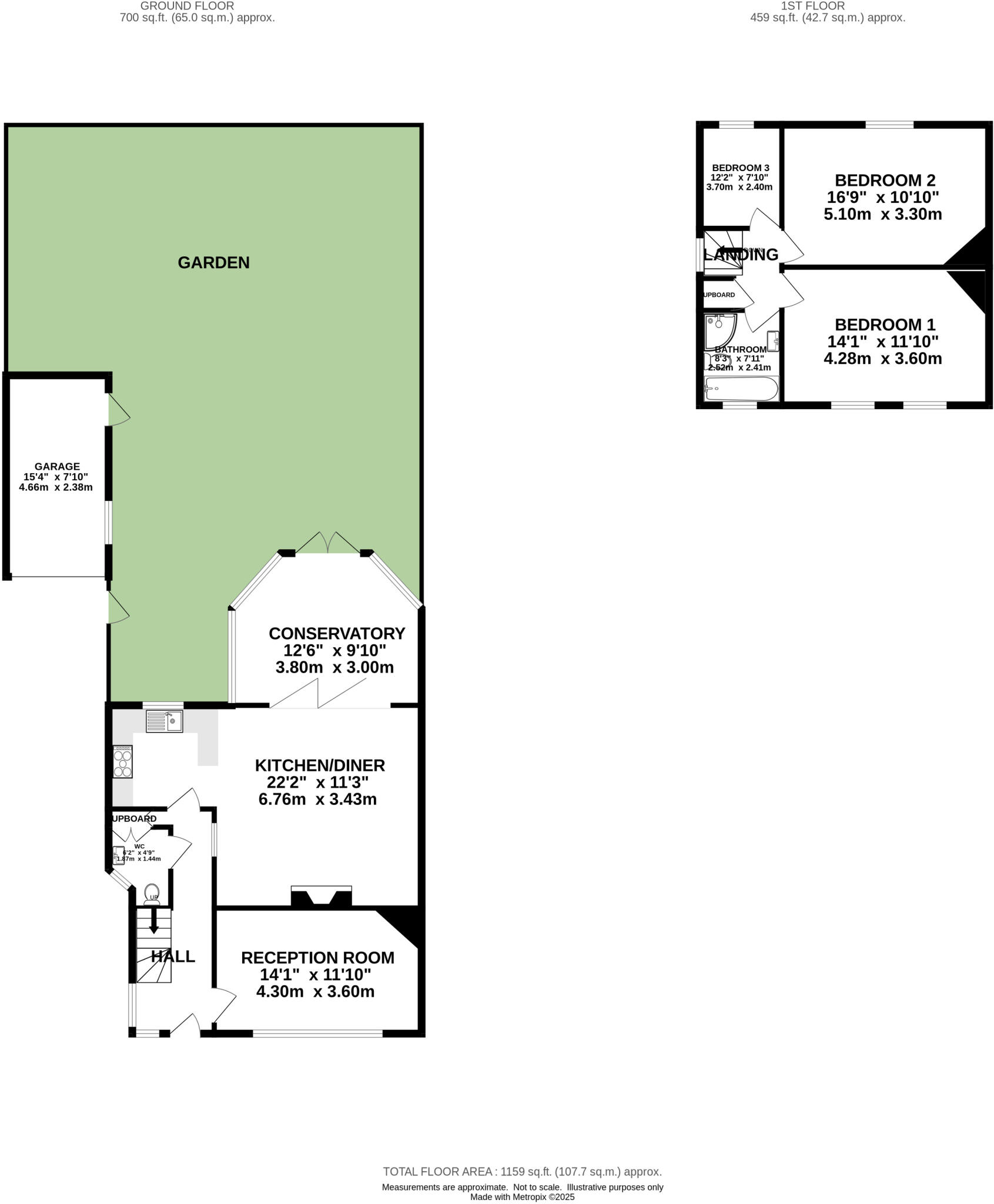
- 24ft modern kitchen/diner plus 14ft reception room
- Conservatory and private rear garden with patio
- Paved driveway, gated side access and detached garage
- Double glazing and mains gas central heating
- Single first-floor bathroom only (one bathroom)
- Solid brick walls assumed without insulation (may need upgrading)
- Council Tax Band E (above average ongoing cost)
Set on a pleasant tree-lined turning close to Bush Hill Park station, this three-bedroom semi delivers practical family living with period charm. The 24ft open-plan kitchen/diner and separate 14ft reception offer flexible space for everyday life and entertaining, while a conservatory extends the ground-floor footprint to the rear. Off-street parking for at least two cars, gated side access and a detached garage make arrivals and storage straightforward.
Built in the early twentieth century, the house benefits from double glazing and gas central heating, and sits on a decent plot with a private rear garden and patio. The location is a major selling point: short walks to good local schools, nearby shops and a direct rail link to central London, which suits school runs and commuting.
Buyers should note some practical considerations: the property has one first-floor bathroom only, and the original solid-brick walls are assumed to lack cavity insulation, so additional insulation works may be needed to maximise energy efficiency. Council Tax sits at Band E, reflecting higher ongoing local costs.
Overall this is a well-presented family home offering immediate liveability with room to update and improve energy performance. It will suit buyers seeking a period-feel home in a convenient Enfield location with strong schooling and transport links.
2 bedroom semi-detached house for sale in Third Avenue, Enfield, EN1 — £535,000 • 2 bed • 1 bath • 905 ft²
4 bedroom semi-detached house for sale in Park Avenue, Enfield, EN1 — £850,000 • 4 bed • 2 bath • 1820 ft²
4 bedroom semi-detached house for sale in Old Park Avenue, Enfield, EN2 — £880,000 • 4 bed • 2 bath • 1429 ft²
3 bedroom terraced house for sale in Hazelwood Road, Enfield, EN1 — £565,000 • 3 bed • 2 bath • 1061 ft²
3 bedroom semi-detached house for sale in Parsonage Lane, Enfield, EN2 — £650,000 • 3 bed • 2 bath • 1238 ft²
3 bedroom terraced house for sale in Harrow Avenue, London, EN1 — £575,000 • 3 bed • 1 bath • 881 ft²


































































































































