**Standout Features:**
- Semi-detached home in popular Hamilton area
- Bright, open-plan lounge/dining room
- Modern fitted kitchen with garden access
- Two spacious double bedrooms with excellent storage
- Enclosed rear garden, perfect for families
- Driveway parking for up to three vehicles
- Gas central heating and double glazing
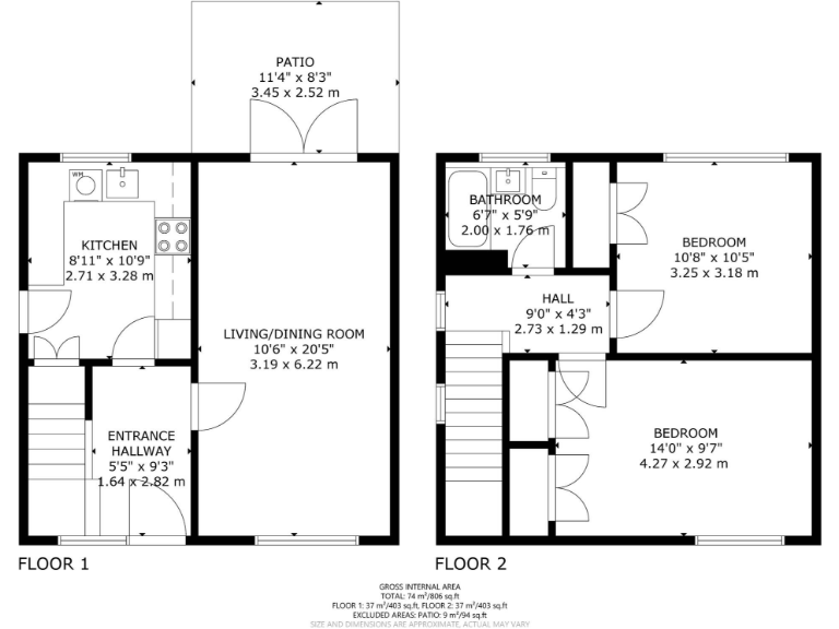
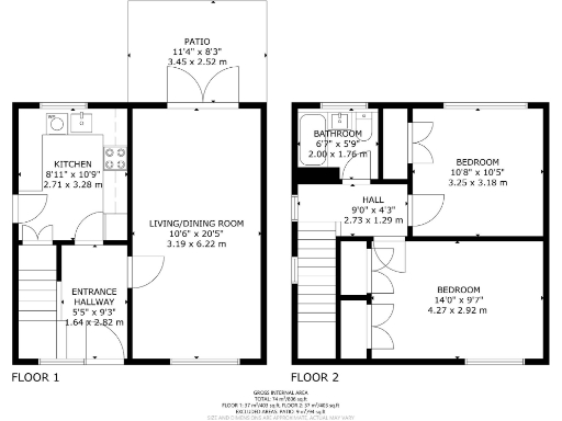
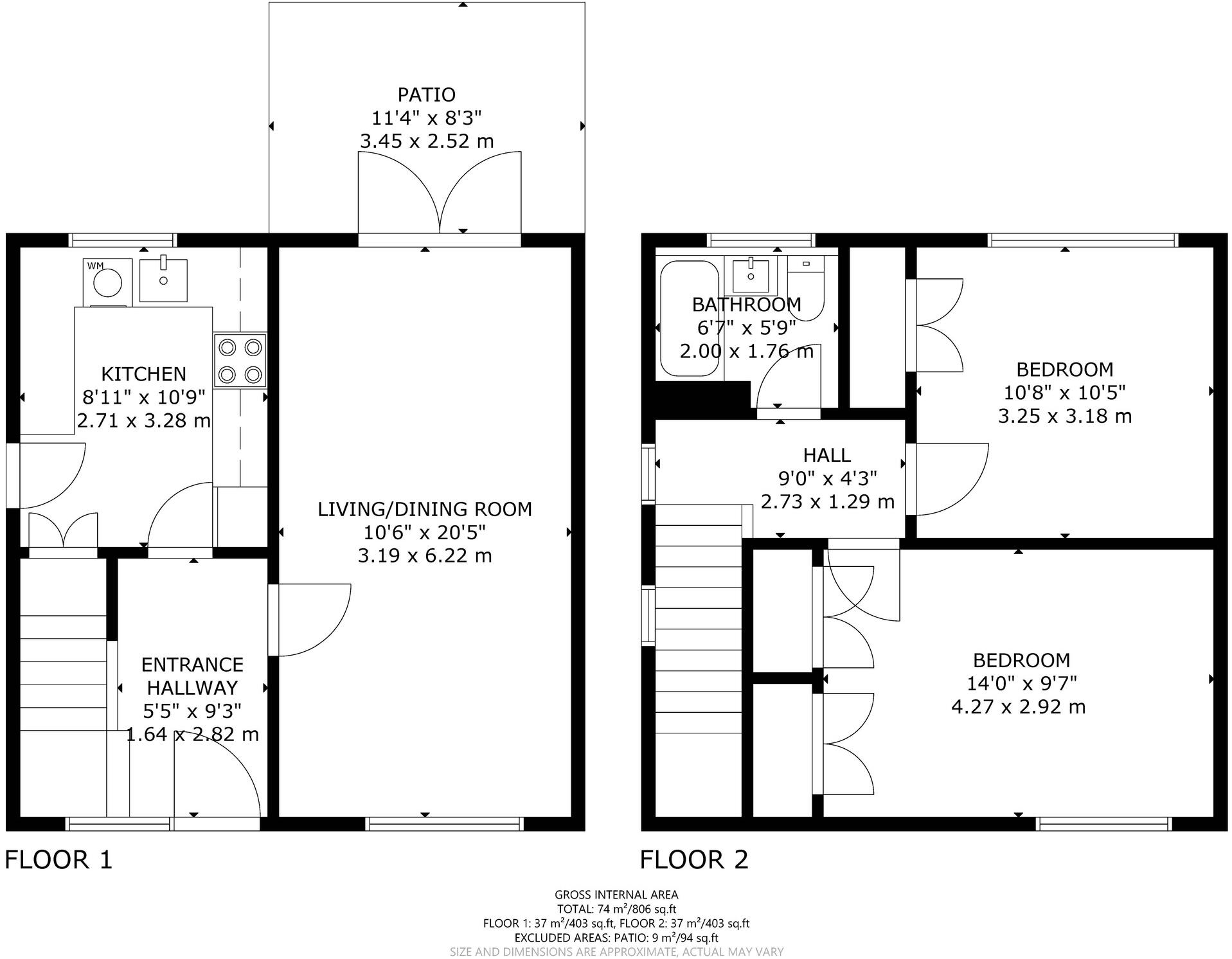
This charming two-bedroom semi-detached home in the sought-after Hamilton area is a perfect opportunity for first-time buyers, families, and working professionals. With a generous open-plan lounge/dining room that invites natural light and offers a great space for entertaining, this home is both functional and inviting. The modern kitchen provides easy access to a private enclosed rear garden, creating an ideal setting for children and gatherings alike.
Upstairs, both sizable double bedrooms feature integrated storage, including a floored attic space that adds to the home's practicality. The stylish family bathroom, complete with a contemporary three-piece suite, adds to the appeal. This home also boasts a large driveway capable of accommodating up to three vehicles, giving you added convenience.
While the average-sized, freehold property does present opportunities for personalization and renovation, it is in excellent condition overall. The local area offers essential amenities and outdoor activities, along with easy access to transport links, making it a well-rounded choice for those seeking comfort and convenience. At an attractive price of £125,000, this property is a must-see—don't miss out on the chance to make it your own!



























































































