Charming newly renovated two-bedroom cottage near North Coast beaches..
Period features: vaulted beams and wood burning stove
Newly renovated interior with integrated kitchen appliances
Small internal size — approx 500 sq ft, cosy rooms
EPC F and electric room heating may increase running costs
Flying freehold: small bathroom section over neighbouring property
Off‑street parking space and low‑maintenance front garden
Close to North Coast beaches and village amenities
Stone walls likely uninsulated; double glazing install date unknown
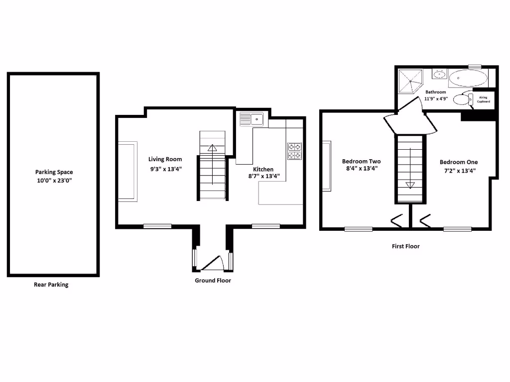
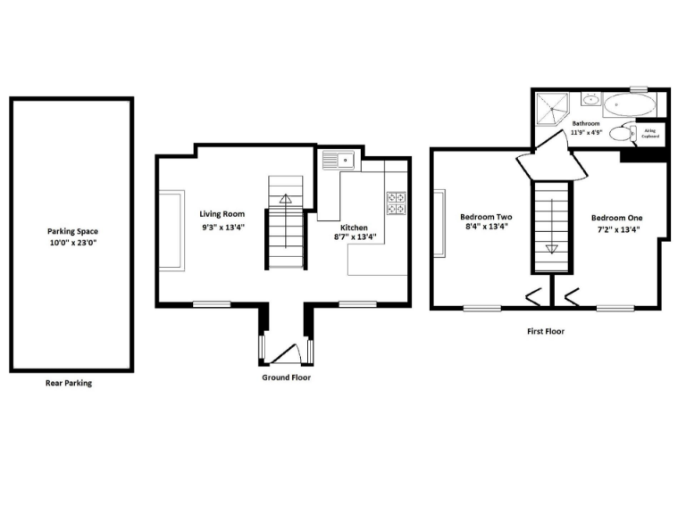
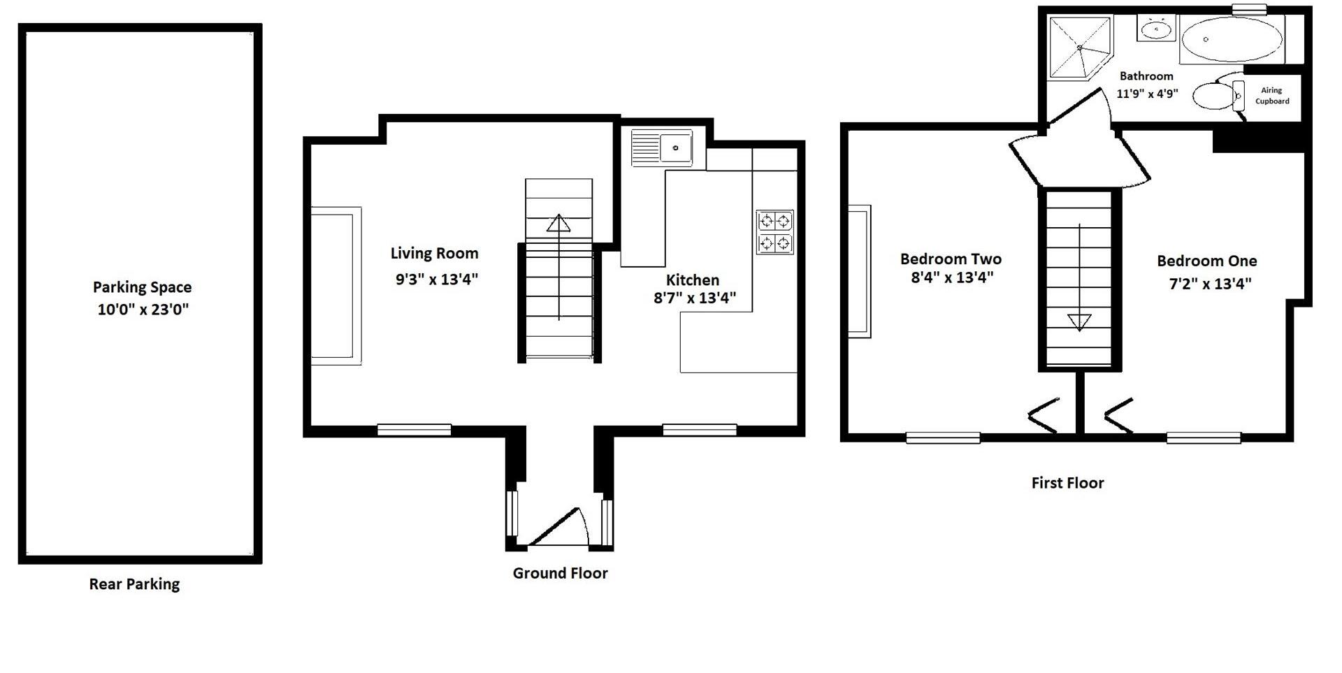
This newly renovated two‑bedroom end‑terrace cottage combines period character with practical village living. Vaulted beams, a feature fireplace with wood burning stove and a compact sitting room create a warm, characterful interior suited to couples or small families.
The ground floor offers a kitchen/dining room with integrated appliances and utility provisions, while two double bedrooms and a bathroom sit on the first floor. The property is small (circa 500 sq ft) so spaces are cosy and efficient rather than expansive.
Outside there is a low‑maintenance gravelled front garden and an off‑street parking space nearby, plus shed storage by separate arrangement. The village location places shops, a primary school and the north Cornish coast within easy reach for leisure and daily needs.
Important practical points: heating is by WiFi‑enabled electric room heaters, the EPC is rated F, and there is a flying freehold where part of the bathroom sits over the neighbouring dwelling. The stone walls are likely uninsulated (as built) and double glazing install date is unknown — these factors affect running costs and potential upgrade work.
4 bedroom end of terrace house for sale in The Cross, St. Newlyn East, TR8 — £395,000 • 4 bed • 2 bath • 2199 ft²
2 bedroom semi-detached house for sale in Nanhayes Row, St. Newlyn East, Newquay, Cornwall, TR8 — £240,000 • 2 bed • 1 bath • 593 ft²
2 bedroom terraced house for sale in Short Cross Road, Mount Hawke, Truro, Cornwall, TR4 — £325,000 • 2 bed • 1 bath
2 bedroom cottage for sale in Quay Road, St. Agnes, TR5 — £425,000 • 2 bed • 1 bath • 516 ft²
3 bedroom end of terrace house for sale in Newquay, TR7 — £285,000 • 3 bed • 2 bath • 932 ft²
2 bedroom terraced house for sale in Rosemundy, St Agnes, TR5 — £375,000 • 2 bed • 1 bath • 700 ft²






























































