Three-bedroom Victorian terrace near Beccles town centre — character, small garden, excellent local amenities..
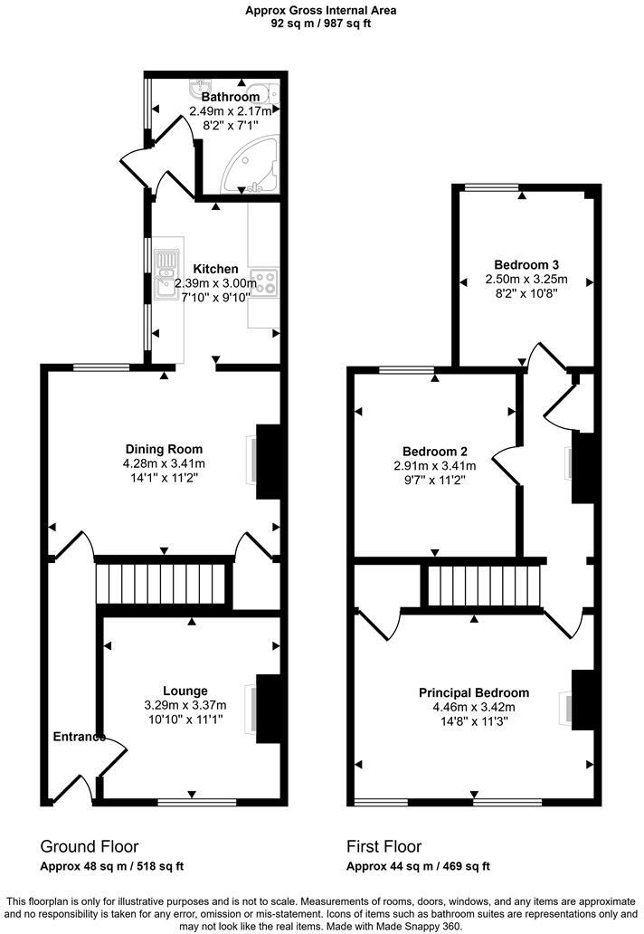
Victorian three-bedroom terrace with hall entrance and period character
Approximately 987 sq ft; modest but well-proportioned rooms
Small landscaped rear garden; paved forecourt to front
Single family bathroom; one kitchen, separate dining and sitting rooms
Freehold tenure; fast broadband, average mobile signal
On-street permit parking only; no private driveway or garage
Located close to town centre, shops, station and several good primary schools
Area has higher crime rate and is socioeconomically deprived
Set on Queens Road in the market town of Beccles, this three-bedroom Victorian terrace offers practical family accommodation with period character and modern comforts. The property provides a hall-entrance, separate sitting and dining rooms, a rear kitchen and a single family bathroom upstairs — a straightforward layout that suits daily family life or a rental let.
At about 987 sq ft, rooms are modest but well-proportioned for a mid-terrace: a larger principal bedroom to the front, a mid double and a smaller third bedroom to the rear. The rear garden is small and landscaped, providing an outdoor retreat for morning coffee or light gardening; the front has a small paved forecourt. Broadband speeds are fast and the house is freehold, with good access to local schools and the town centre on foot.
Practicalities to note: the property sits in an area with higher crime rates and wider socioeconomic deprivation, and parking is on-street with permit requirements likely. The plot and garden are small and internal space is average for a two-storey terrace — suitable for a growing family seeking town living or an investor looking for a let in a busy market town. External tidying or minor cosmetic updating may be beneficial to maximise appeal.
Offered with a guide price of £220,000–£230,000, this house is best suited to buyers wanting town-centre convenience, character features and straightforward, manageable accommodation within walking distance of shops, schools and the train station. A viewing is recommended to assess room proportions and configuration in person.
3 bedroom end of terrace house for sale in Queens Road, Beccles, NR34 — £220,000 • 3 bed • 1 bath • 936 ft²
3 bedroom terraced house for sale in St. Benedicts Road, Beccles, NR34 9DE, NR34 — £210,000 • 3 bed • 1 bath • 808 ft²
3 bedroom end of terrace house for sale in Denmark Road, Beccles, Suffolk, NR34 — £200,000 • 3 bed • 1 bath • 795 ft²
3 bedroom terraced house for sale in Queens Road, Beccles, Suffolk, NR34 — £175,000 • 3 bed • 1 bath • 1034 ft²
5 bedroom terraced house for sale in Station Road, Beccles, Suffolk, NR34 — £425,000 • 5 bed • 2 bath • 1772 ft²
3 bedroom end of terrace house for sale in Ravensmere East, Beccles, Suffolk, NR34 — £180,000 • 3 bed • 1 bath • 823 ft²














































