**Standout Features:**
- Historic five-bedroom detached farmhouse dating back to the 1600s
- Spacious rooms, including a breakfast kitchen with a feature AGA and an elegant lounge
- Separate annexe with sitting room, two bedrooms, and shower room—ideal for extended family
- Beautiful wrap-around garden with a secluded courtyard, offering privacy and tranquility
- Driveway and integral garage providing ample parking
- Rural location with easy access to transport links and local amenities
**Summary:**
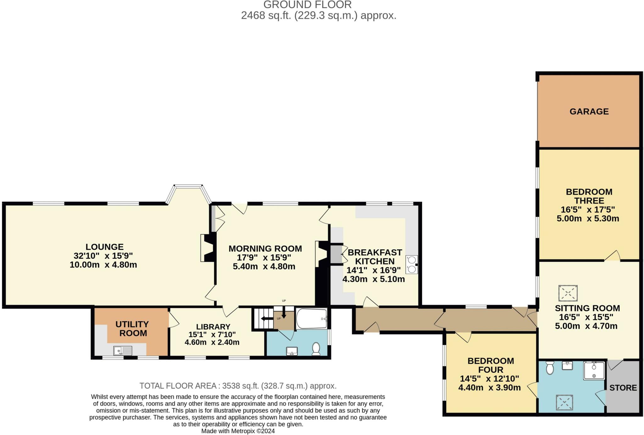
Embrace the charm and history of this stunning five-bedroom detached farmhouse, a beautiful blend of rustic elegance and modern comforts, nestled in the picturesque village of Badsworth. Dating back to the 1600s, this character property features expansive living areas, including a light-filled morning room, a welcoming lounge with a striking fireplace, and a cozy library perfect for relaxing with a book. The spacious breakfast kitchen, set in the former dairy parlour, boasts a traditional AGA alongside contemporary cooking provisions.
Ideal for families or those seeking independent living arrangements, the separate annexe provides flexible accommodation options, making it perfect for multi-generational living or as a guest suite. The master bedroom impresses with its vaulted ceiling and en-suite, while additional bedrooms offer ample space for a growing family.
Enjoy the luscious wrap-around garden, a serene sanctuary for morning coffee or evening gatherings, all while benefiting from local amenities and excellent transport links just a short drive away. This historic gem combines both privacy and community, sitting on a decent plot in a thriving area. Don't miss the opportunity to make this exceptional farmhouse your family’s forever home; a property of this calibre will not be on the market for long!
6 bedroom house for sale in Royd Moor Lane, Badsworth, Pontefract, WF9 — £1,500,000 • 6 bed • 3 bath • 3439 ft²
3 bedroom detached house for sale in The Croft, Back Lane, Badsworth, WF9 — £750,000 • 3 bed • 2 bath • 1554 ft²
4 bedroom character property for sale in Sleep Hill Lane, Skelbrooke, DN6 — £800,000 • 4 bed • 3 bath • 847 ft²
4 bedroom character property for sale in Wood Farmhouse, Doncaster Road, Whitley, DN14 — £650,000 • 4 bed • 2 bath • 3641 ft²
5 bedroom detached house for sale in Briestfield Road, Dewsbury, West Yorkshire, WF12 — £1,000,000 • 5 bed • 3 bath • 3020 ft²
4 bedroom detached house for sale in Badsworth, Pontefract, WF9 — £1,195,000 • 4 bed • 3 bath • 3500 ft²










































































































































































































