DA1 3EA - 3 bedroom semidetached house for sale in West Hill Drive, D…

View on Property Piper

3 bedroom semi-detached house for sale in West Hill Drive, Dartford, DA1

Summary - 79 WEST HILL DRIVE DARTFORD DA1 3EA

3 bed 2 bath Semi-Detached

Bright three-bed family home with huge south garden and excellent commuter links.
Three double bedrooms with integrated wardrobes
Large south-facing garden with garage and outhouse
Parking for up to four cars front and side
Two bathrooms: family bath plus separate shower
Bright open-plan kitchen/diner with granite worktops
Good walking access to station, town centre, schools
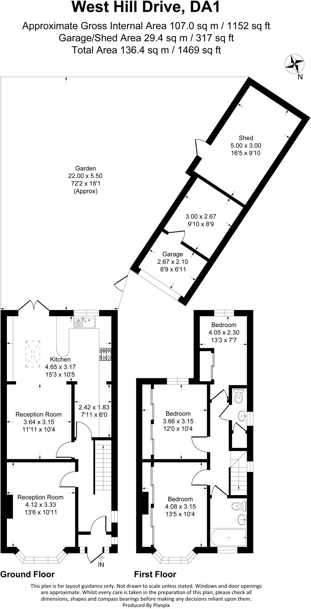
Freehold, 1,152 sqft, no flood risk
Garage/outhouse currently a workshop; may need updating
Guide price £500,000–£525,000. This well-presented 1930s semi sits on West Hill Drive and is tailored to families seeking space, light and easy commuting. The ground floor has two reception rooms and an open-plan kitchen/diner with a Velux window and granite worktops, creating a bright, move-in ready living space.

All three bedrooms are doubles with integrated wardrobes, and the property includes a family bathroom plus a separate shower room — useful for busy mornings. The house measures about 1,152 sq ft overall, with a narrower third bedroom (13'3" x 7'7") to note when planning layouts.

Externally the plot is a major selling point: a huge south-facing rear garden of roughly 72' with an external garage and an outhouse currently used as a workshop and storage. Off-street parking for up to four cars is available to the front and side. The location is genuinely convenient — within walking distance of Dartford train station, town centre amenities and highly regarded grammar schools.

Practical facts: the property is freehold, in an affluent area with fast broadband and excellent mobile signal. Flood risk is low. Consider that crime is described as average locally and the garage/outhouse are functional but could need updating depending on intended use.

Property Details

Image Descriptions

Floorplan Description

Rooms

Textual Property Features

Target Audience

AI Tags

Detected Visual Features

Nearby Schools

Nearest Bars And Restaurants

,,,,}

Nearest General Shops

,,}

Nearest Grocery shops

,,}

Nearest Supermarkets

,,}

Nearest Religious buildings

,,}

Nearest Medical buildings

,,,}

Nearest Airports

,,}

Nearest Leisure Facilities

,,,,}

Nearest Tourist attractions

,,}

Nearest Train stations

,,,,}

Nearest Bus stations and stops

,,,,}

Nearest Hotels

,,}

Tags

Local Market Stats

AirBnB Data

Similar Properties

Meta

High Res Images

Compatible Images

Low res Images

Thumbnails

Raw Images

High Res Floorplan Images

Compatible Floorplan Images

Low res Floorplan Images

FloorplanImages Thumbnail

Raw Floorplan Images