**Standout Features:**
- Expansive light industrial unit of 5,050 sq ft
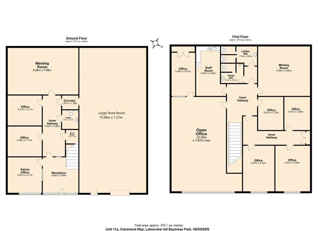
- Ground floor storage with first floor offices
- Gated fenced yard with parking for 14 vehicles
- Air conditioning and heating throughout
- Long-term leasehold of 999 years available
- Landlord incentives for 5-year leases
- Low crime rate and decent broadband speeds
This impressive light industrial property offers a unique investment opportunity in the tranquil setting of Lakesview Business Park, perfect for those looking to establish or expand a business in a functional space. The ground floor hosts a vast storeroom, a meeting room, and three offices, complemented by essential WC facilities. Venture upstairs to find additional office spaces and a staff room, all bathed in natural light from large windows—a productivity-enhancing atmosphere.
Set on a generous plot with ample gated parking for 14 vehicles, this property combines functionality with convenience, making it suitable for a variety of business uses. While the surrounding area is predominantly industrial, it boasts a low crime rate and access to reputable primary and secondary schools, ideal for businesses prioritizing community connections.
Investors should note the long lease available and the potential for future renovations or expansions to personalize the space further. The property makes a compelling case with the current climate of rising demand for commercial spaces combined with available landlord incentives. Act fast, as opportunities in this sought-after location won't last long!
Warehouse for sale in Industrial / office unit for sale , CT3 — £365,000 • 1 bed • 2 bath • 2795 ft²
Industrial development for sale in Westwood Industrial Estate, Margate, CT9 — £750,000 • 1 bed • 1 bath • 10042 ft²
Warehouse for sale in 7 Anchor Business Park, Castle Road, Sittingbourne, Kent, ME10 3AE, ME10 — £425,000 • 1 bed • 1 bath • 2551 ft²
Light industrial facility for sale in Light Industrial Unit - For Sale, CT12 — £175,000 • 1 bed • 1 bath • 1790 ft²
Light industrial facility for sale in Highstreet Road, Hernhill, ME13 — £295,000 • 1 bed • 1 bath • 1000 ft²
Light industrial facility for sale in The Oaks ,Invicta Way, Manston Business Park, Ramsgate, CT12 — £185,000 • 1 bed • 1 bath • 2000 ft²






































