**Standout Features:**
- **Spacious Size**: Approximately 1,956 sq. ft. of versatile space.
- **Character**: Period features with high ceilings, sash windows, and ornate fireplaces.
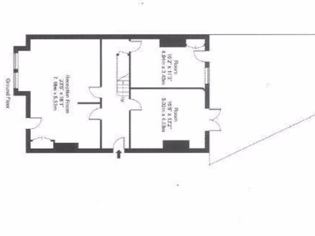
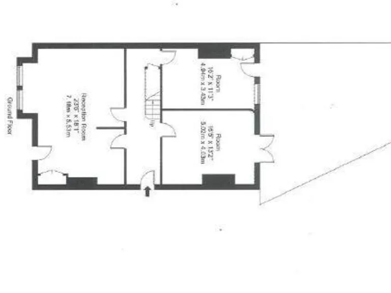
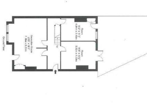
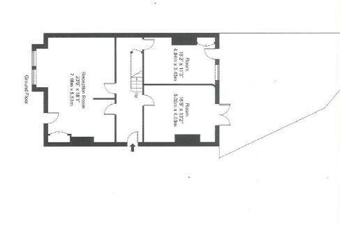
- **Functional Layout**: Ground floor currently configured as a showroom with two offices; first floor includes two rooms used as bedrooms, a boardroom, a fitted kitchen, and two WCs.
- **Outdoor Space**: Rear garden and small front grass area.
- **Parking**: Off-street parking for two vehicles.
- **Location Advantages**: Proximity to North Acton Tube station, easy access to A40 and North Circular Road, and surrounded by various local amenities.
**Potential Downsides:**
- **Maintenance Considerations**: Some portions of the property may require updates, particularly given the historic build pre-1900.
- **Non-retail Area**: Located in a mostly non-retail pitch, which may affect foot traffic for businesses.
- **Broadband Speeds**: Slow internet speeds could be a limitation for tech-dependent users.
This impressive two-storey freehold shop on Park Royal Road offers a unique blend of historical charm and modern functionality. The property is well-suited for investors or business owners seeking a spacious location with plenty of potential for renovations or adaptations. With period features that exude character—such as high ceilings and ornate details—this property provides a warm ambiance perfect for welcoming clients or customers.
Additionally, the off-street parking for two vehicles enhances convenience, making it a desirable asset for both usage and investment. The attractive price of £850,000 reflects its size, location, and potential, making it a rarity in today’s market. Don’t miss the chance to claim this versatile space—whether for a business venture or as a prime investment, the possibilities are endless!
Commercial property for sale in Market Place, London, W3 — £375,000 • 1 bed • 1 bath • 1500 ft²
Commercial property for sale in 400 Harrow Road, Maida Vale, London, W9 2HU, W9 — £1,100,000 • 1 bed • 1 bath • 3543 ft²
Land for sale in 142 - 154 Victoria Road, North Acton, London, W3 — £2,000,000 • 1 bed • 1 bath • 3778 ft²
Office for sale in 13a-15 Fortess Road, London, NW5 — £900,000 • 1 bed • 1 bath • 1843 ft²
Property for sale in Portobello Road, London, W11 — £3,950,000 • 1 bed • 1 bath • 2349 ft²
Commercial property for sale in Acton Lane, Chiswick, W4 — £900,000 • 2 bed • 1 bath • 1200 ft²


















































