Chain-free two-bedroom maisonette near Brick Lane with balcony and garage parking.
Chain-free two-double-bedroom maisonette with private entrance
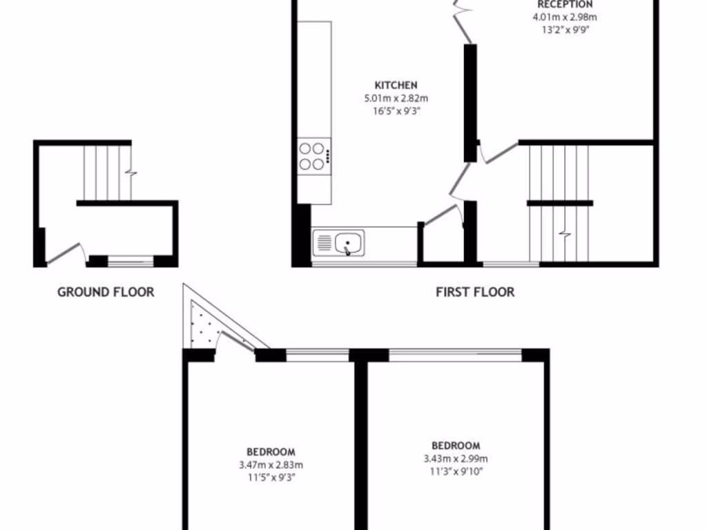
A bright two-double-bedroom maisonette offering over 819 sq ft just off Brick Lane, ideal for a first-time buyer seeking space and strong local amenities. The flat has its own private entrance, a separate modern kitchen, and a south-facing balcony that brings good daylight into the main living area. Chain-free sale and a garage parking space add practical convenience in a central location.
The property sits within easy reach of Shoreditch High Street, Bethnal Green and Old Street stations, and benefits from numerous cafés, restaurants and markets on the doorstep. Local green space includes Weavers Fields and Spitalfields, while several well-rated primary and secondary schools are nearby—useful for buyers planning long-term.
Buyers should note this is a leasehold home with 87 years remaining, an annual service charge of approximately £2,217 and a ground rent of £10. There is a single bathroom and the building dates from the early 1990s, so some cosmetic updating may be desired to personalise the space. The wider area is classified as very deprived, though the immediate neighbourhood is inner-city cosmopolitan with low crime rates and excellent transport and broadband connectivity.
2 bedroom maisonette for sale in Granby Street, London, E2 — £500,000 • 2 bed • 1 bath • 854 ft²
2 bedroom maisonette for sale in Shoreditch, Shoreditch, London, E2 — £500,000 • 2 bed • 1 bath • 849 ft²
2 bedroom apartment for sale in St Matthews Row, London, E2 — £540,000 • 2 bed • 1 bath • 618 ft²
2 bedroom maisonette for sale in Goldman Close, London, E2 — £577,500 • 2 bed • 1 bath • 839 ft²
3 bedroom maisonette for sale in Ramsey Street, London, E2 — £500,000 • 3 bed • 1 bath • 595 ft²
2 bedroom flat for sale in Fuller Close, Bethnal Green, E2 — £450,000 • 2 bed • 1 bath • 626 ft²






































