**Standout Features:**
- Spacious second-floor retirement apartment
- Includes residents' restaurant and lounge
- Domestic help services included
- Double bedroom and large reception room
- Kitchen with modern amenities
- Residents' usage of communal garden
- Convenient access to train station and amenities
- Informal parking available
**Summary:**
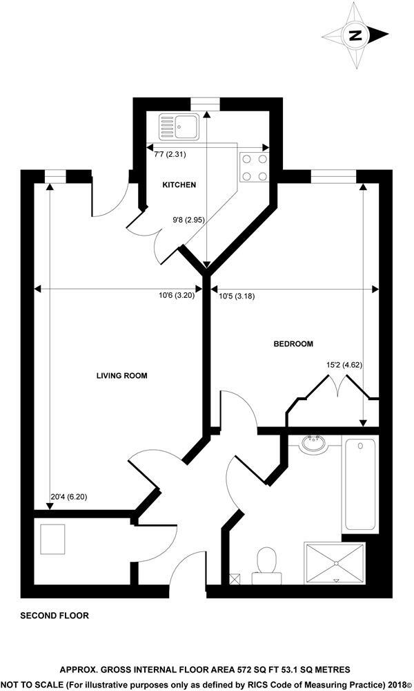
Nestled within the charming Byron Court, this second-floor retirement flat offers comfortable living in a vibrant and cosmopolitan neighborhood. Spanning 572 sq ft, this well-lit apartment features a generous reception room, a spacious double bedroom, and a well-equipped kitchen, perfect for relaxed living. Enjoy the convenience of an on-site residents' restaurant and lounge, with domestic help services included in the service charge, making daily life hassle-free.
The property boasts excellent communal facilities, including a laundry room and even guest accommodation for visiting family or friends. With convenient access to the train station and local amenities just a stone's throw away, this apartment is ideal for those seeking a balanced lifestyle. While the leasehold extends for 111 years, potential buyers should note the above-average service charge of £6347.99 per annum, alongside the communal nature of the living environment. Whether you're looking for a serene place to retire or an investment opportunity in a high-demand area, this apartment offers a unique blend of support, community, and accessibility—an opportunity that won't last long!
1 bedroom retirement property for sale in Stockbridge Road, Chichester, PO19 — £120,000 • 1 bed • 1 bath • 549 ft²
2 bedroom retirement property for sale in Stockbridge Road, Chichester, PO19 — £250,000 • 2 bed • 1 bath • 763 ft²
2 bedroom flat for sale in Stockbridge Road, Chichester, West Sussex, PO19 — £150,000 • 2 bed • 1 bath • 841 ft²
1 bedroom apartment for sale in Byron Court (Chichester), Chichester, PO19 — £99,000 • 1 bed • 1 bath • 646 ft²
1 bedroom retirement property for sale in Stockbridge Road, Chichester, PO19 — £170,000 • 1 bed • 1 bath • 635 ft²
2 bedroom apartment for sale in Byron Court (Chichester), Chichester, PO19 — £175,000 • 2 bed • 1 bath • 804 ft²










































