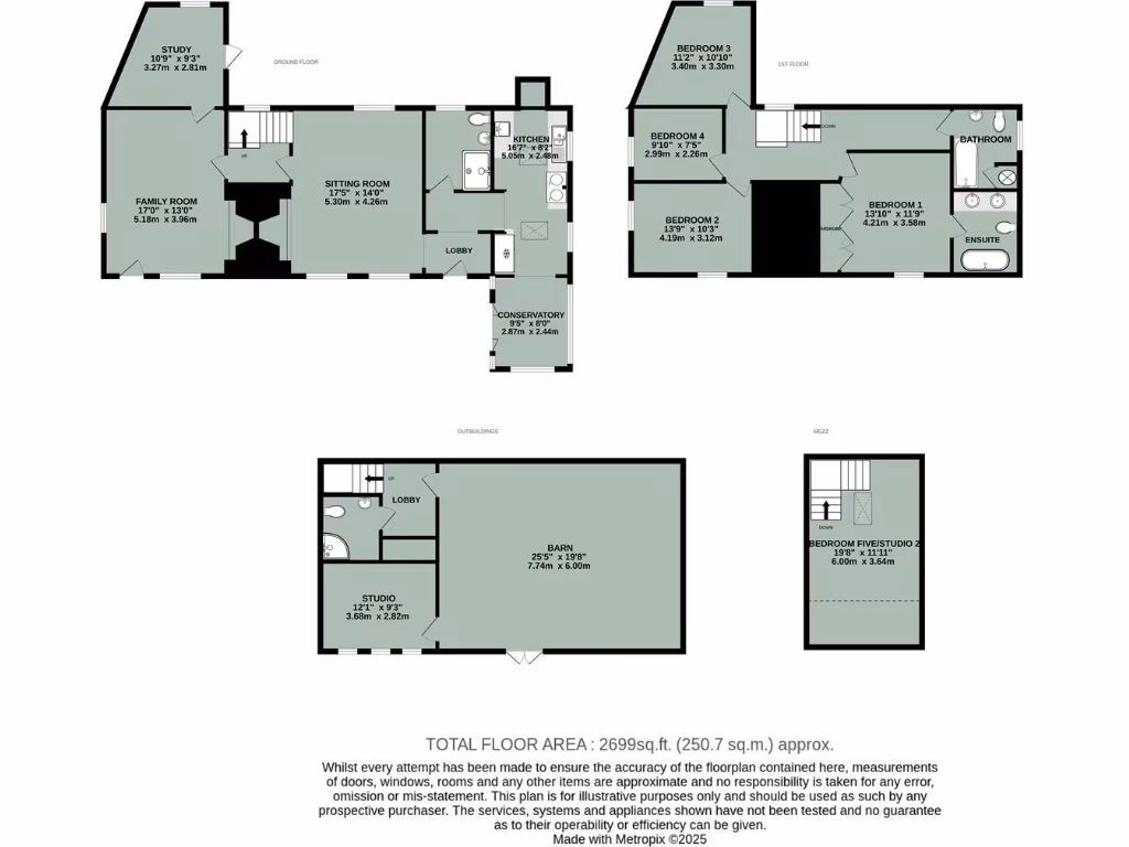
Characterful family home with private gardens and separate studio accommodation.
- Thatched 17th‑century cottage with abundant period features
- Five bedrooms, principal with en‑suite and fitted wardrobes
- Detached barn with self‑contained studio and shower room
- Large, private mature gardens with high landscaping potential
- Gated driveway parking for three vehicles
- Solid brick walls (pre‑1900) likely lack insulation
- Requires updating/modernisation in places to maximise value
- Slow broadband and quite expensive council tax
A rare thatched cottage dating from the 1600s, this detached house combines historic character with flexible modern living. Exposed beams, inglenook fireplaces and original features give warmth and charm across generous reception rooms and five bedrooms, including a principal suite with en‑suite facilities.
The large, mature gardens and private plot create a tranquil countryside feel and offer scope for landscaping or extension (subject to planning). A substantial detached barn includes a self‑contained studio with shower room — ideal for guests, home working or ancillary rental income.
Practical benefits include gated driveway parking for three cars and mains gas boiler with radiators. The property sits in a very affluent, low‑crime village with good local schools and community life.
Buyers should note the house is of solid brick construction (pre‑1900) so traditional walls are likely uninsulated and the home will benefit from sympathetic updating in places. Broadband speeds are slow and council tax is quite expensive. Overall this is a characterful family home with considerable potential for improvement and ancillary income from the studio.
3 bedroom detached house for sale in Townsend, Harwell, Didcot, OX11 0DX, OX11 — £700,000 • 3 bed • 1 bath • 2011 ft²
3 bedroom house for sale in The Bothy, Streatley on Thames, RG8 — £1,650,000 • 3 bed • 3 bath • 2475 ft²
3 bedroom character property for sale in Paper Mill Lane, South Moreton, OX11 — £650,000 • 3 bed • 1 bath • 1813 ft²
3 bedroom detached house for sale in Willington Down Farm, Abingdon Road, Didcot, OX11 — £550,000 • 3 bed • 1 bath • 1597 ft²
5 bedroom detached house for sale in North Street, Aston, Bampton, OX18 — £1,000,000 • 5 bed • 5 bath • 3208 ft²
4 bedroom detached house for sale in Brightwalton, Brightwalton, Newbury, RG20 — £725,000 • 4 bed • 2 bath • 1861 ft²






































































































