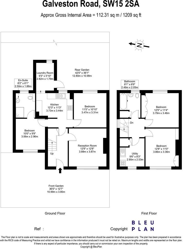
**Property Highlights:**
- Four spacious bedrooms and two bathrooms
- Large 42ft rear garden and a front garden
- Off-street parking available
- Utility and laundry rooms for practical living
- Requires renovation for modern appeal
- Prime location near East Putney station and local amenities
- Chain free, ready for immediate ownership
Discover an exciting project in the heart of East Putney with this four-bedroom, semi-detached house. Offering a generous layout with two bathrooms, a utility room, and laundry facilities, this home is perfect for families seeking space and convenience. The expansive 42ft rear garden presents a blank canvas for outdoor living, while the off-street parking adds valuable practicality for car owners.
Located just a stone's throw from East Putney Underground Station and the vibrant shops of Putney High Street, this property is positioned in a desirable area with access to picturesque parks and the River Thames. While this home is in need of renovation, it offers tremendous potential to create your dream living space. With no onward chain, seize the opportunity to transform this house into your perfect family home in an affluent, connected community. Act quickly—properties in this neighborhood won't last long!
4 bedroom terraced house for sale in Normanby Close, London, SW15 — £925,000 • 4 bed • 2 bath • 1152 ft²
3 bedroom end of terrace house for sale in Westhorpe Road, London, SW15 — £1,195,000 • 3 bed • 1 bath • 1269 ft²
7 bedroom semi-detached house for sale in Rusholme Road, London, SW15 — £2,100,000 • 7 bed • 2 bath • 2831 ft²
4 bedroom terraced house for sale in Mexfield Road, London, SW15 — £1,150,000 • 4 bed • 2 bath • 1593 ft²
4 bedroom end of terrace house for sale in Whitefield Close, London, SW15 — £925,000 • 4 bed • 2 bath • 1481 ft²
5 bedroom semi-detached house for sale in Carmalt Gardens, Putney, SW15 — £1,750,000 • 5 bed • 2 bath • 2210 ft²






























































