Extended semi with garage, driveway, garden and security system—ideal for families.
Contemporary open-plan kitchen-diner ideal for family living
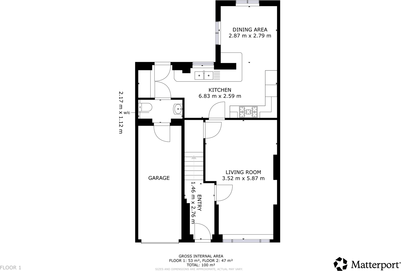
This extended three-bedroom semi-detached house on Locking Drive offers practical family living with modern touches. An open-plan kitchen-diner and a welcoming lounge provide flexible space for daily life and entertaining, while a ground-floor WC and integral garage add convenience. The property includes a driveway, private rear garden and a 3D virtual tour for remote viewing.
Security is a clear plus: an alarm system with two motion-detecting cameras is fitted. The home sits in a well-established Armthorpe neighbourhood close to several primary schools rated Good and accessible secondary schools; local amenities and transport links are within easy reach. Council tax band is described as inexpensive and broadband and mobile connectivity are strong.
Buyers should note some practical considerations. The plot is modest in size and the area has a medium flood risk — appropriate insurance and local flood-preparedness checks are recommended. The property dates from the late 1970s/early 1980s and, while largely modern in presentation, some buyers may want to budget for updating (unknown dates for glazing and other services). Overall this freehold home suits families seeking move-in-capable accommodation with scope for personalization.
For families prioritising schooling, local primary options include Tranmoor and Southfield (both Good); one nearby secondary (Armthorpe Academy) is currently rated Requires Improvement. Viewings (including the virtual 3D tour) will best show the flow of the open-plan living and the usable garden space.
3 bedroom semi-detached house for sale in Laburnum Drive, Armthorpe, Doncaster, DN3 — £160,000 • 3 bed • 1 bath • 937 ft²
3 bedroom semi-detached house for sale in Rands Lane, Armthorpe, Doncaster, DN3 — £189,999 • 3 bed • 2 bath • 861 ft²
3 bedroom semi-detached house for sale in Hazel Grove, Armthorpe, DN3 — £159,995 • 3 bed • 1 bath • 786 ft²
3 bedroom semi-detached house for sale in Cherry Tree Road, Armthorpe, Doncaster, DN3 — £160,000 • 3 bed • 1 bath
3 bedroom semi-detached house for sale in Hornsby Road, Armthorpe, Doncaster, DN3 — £179,000 • 3 bed • 1 bath • 657 ft²
3 bedroom semi-detached house for sale in Fernbank Drive, Armthorpe, Doncaster, DN3 — £200,000 • 3 bed • 1 bath • 878 ft²






















































































