Chain-free, newly renovated two-bed flat with private low-maintenance garden — ideal first step or rental buy.
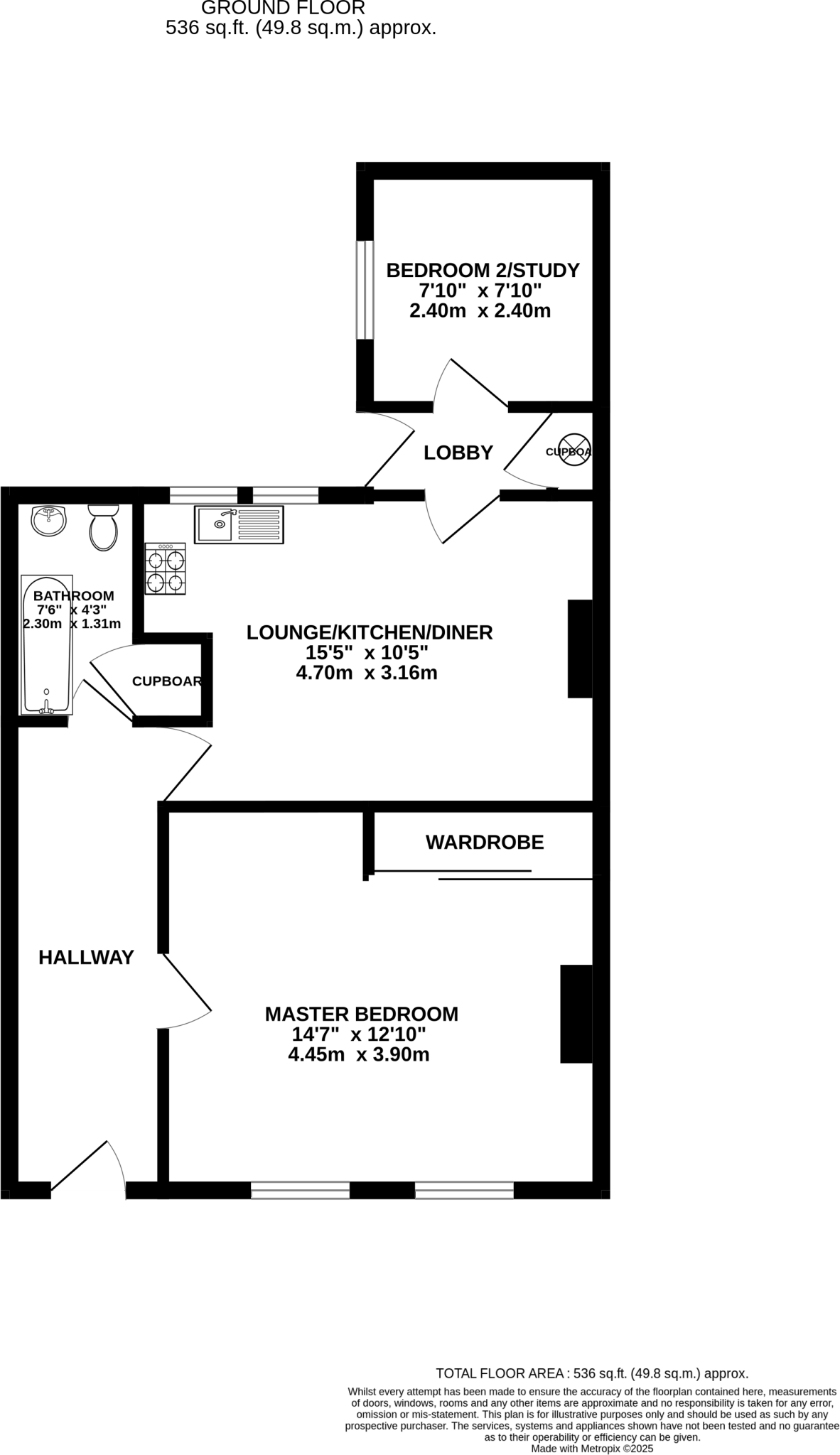
Chain-free two-bedroom ground-floor flat, 536 sq ft
A compact, freshly updated ground-floor flat in Ashington, offered chain-free and ready to move into. The apartment has been modernised throughout with quality fixtures, timber doors, contemporary kitchen and bathroom, and an unusually generous low-maintenance rear yard for a ground-floor flat. A long lease (980 years) and fast broadband make this a straightforward purchase for a first-time buyer or a buy-to-let investor.
Internally the layout is traditional: a large main bedroom with fitted wardrobes, a second bedroom or home office, a bright open-plan lounge/kitchen/diner and a stylish family bathroom. The property totals approximately 536 sq ft and benefits from full uPVC glazing, gas central heating and mains services already connected.
Location is practical: an easy walk to Ashington town centre, local shops and bus routes, with the Northumberland rail line and Morpeth/ Newbiggin beach within short drives. Local schools include several rated Good, although the wider area shows higher levels of deprivation and recorded crime is high — factors to weigh for families or risk-averse buyers.
This apartment offers clear value at the listed price and is particularly suited to buyers seeking an affordable entry into ownership or landlords looking for a turn-key rental in a proven letting area. Note the property is leasehold, on-street parking only, and the overall internal footprint is small; viewings are recommended to judge space and neighbourhood suitability in person.
2 bedroom flat for sale in Hindmarsh Drive, Ashington, NE63 — £74,999 • 2 bed • 1 bath • 560 ft²
2 bedroom ground floor flat for sale in Hindmarsh Drive, Ashington, Northumberland, NE63 9FA, NE63 — £75,000 • 2 bed • 1 bath • 535 ft²
2 bedroom ground floor flat for sale in Surrey Close, Ashington, Northumberland, NE63 8PG, NE63 — £60,000 • 2 bed • 1 bath • 711 ft²
2 bedroom terraced house for sale in Seventh Avenue, Ashington, NE63 — £80,000 • 2 bed • 1 bath
2 bedroom flat for sale in Green Croft, Ashington, NE63 — £75,000 • 2 bed • 1 bath • 594 ft²
2 bedroom terraced house for sale in Sycamore Street, Ashington, NE63 — £55,000 • 2 bed • 1 bath • 732 ft²


























































































