**Standout Features:**
- Victorian terraced house ideal for first-time buyers or buy-to-let investors
- Extended living space with a fitted kitchen and two bathrooms (one shower, one family)
- Chain-free sale for ease and quick ownership transfer
- Detached garage for extra storage
- Good local amenities and schools with a mix of cultural diversity
- Mains gas heating and double glazing for comfort
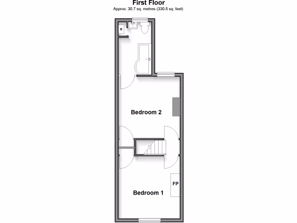
**Summary:**
Discover a charming Victorian terraced house, perfect for first-time buyers or savvy investors looking for a buy-to-let opportunity. This 2-bedroom home boasts an extended layout, featuring a modern fitted kitchen that flows beautifully into the living and dining areas. Enjoy the practicality of a downstairs shower room alongside a family bathroom upstairs, ensuring convenience for all.
Set in a vibrant community with easy access to local amenities and excellent nearby schools—including the outstanding Mayfield Grammar School—this property is ideal for families seeking a cozy yet connected home. With no chain involved, seize the opportunity to move in without delay. A private garage provides additional storage, enhancing the home's practicality.
While its average-sized garden may need some seasonal care, the solid brick structure offers potential for future renovations. At an attractive price of £270,000, this unique offering won't last long—envision your future here today!
2 bedroom semi-detached house for sale in Dover Road East, Gravesend, Kent, DA11 — £280,000 • 2 bed • 1 bath • 598 ft²
2 bedroom terraced house for sale in Nelson Road, Northfleet, Gravesend, Kent, DA11 — £240,000 • 2 bed • 1 bath • 595 ft²
2 bedroom terraced house for sale in Coombe Road, Gravesend, Kent, DA12 — £300,000 • 2 bed • 1 bath • 537 ft²
2 bedroom terraced house for sale in Bryant Road, Strood, Rochester, Kent, ME2 — £240,000 • 2 bed • 1 bath • 700 ft²
2 bedroom terraced house for sale in Nelson Road, Northfleet, Gravesend, Kent, DA11 — £285,000 • 2 bed • 1 bath • 595 ft²
3 bedroom end of terrace house for sale in Ascot Road, Gravesend, Kent, DA12 — £400,000 • 3 bed • 1 bath • 1045 ft²






















































































