**Standout Features:**
- **Three Bedrooms** with ample living space
- **Enclosed Rear Garden** perfect for family gatherings
- **Off-Street Parking** for convenience
- **Mid-Terrace Design** with charming mid-century character
- **Excellent Broadband and Mobile Signal** for modern connectivity
- **Very Low Crime Rate**, ensuring a safe neighborhood
**Concerns:**
- **Potential Mold Issues** in the living room
- **Dated Interior** may require renovations
- **Small Plot Size** with limited outdoor space
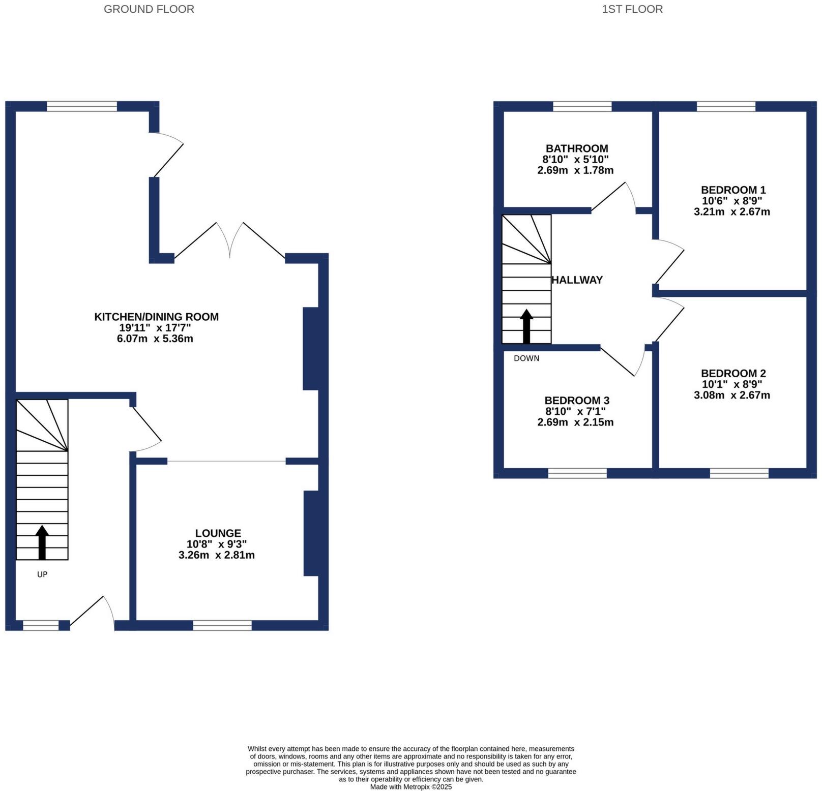
Nestled in the sought-after St Thomas area, this charming three-bedroom mid-terrace house offers a blend of comfort and potential for first-time buyers and families looking for a cozy space. With a warm, inviting living room featuring a multi-fuel burner and abundant natural light, the home creates a welcoming atmosphere. The property's layout includes a practical kitchen and a dining area that opens to an enclosed rear garden, ideal for outdoor enjoyment.
Though the aesthetic may be dated, this present a valuable opportunity for cosmetic upgrades and personalization. With off-street parking and excellent access to local schools, amenities, and public transport, this home is perfectly positioned for convenience. Don’t miss out on the chance to transform this property into your dream home in a family-friendly neighborhood!
3 bedroom end of terrace house for sale in Broadway, St. Thomas, EX2 — £295,000 • 3 bed • 1 bath • 900 ft²
2 bedroom terraced house for sale in Woodah Road, St Thomas, EX4 — £279,000 • 2 bed • 1 bath • 851 ft²
3 bedroom semi-detached house for sale in Wardrew Road, St Thomas, EX4 — £375,000 • 3 bed • 1 bath • 799 ft²
3 bedroom terraced house for sale in Landscore Road, Exeter, EX4 — £280,000 • 3 bed • 1 bath
3 bedroom terraced house for sale in Exeter, EX4 — £300,000 • 3 bed • 1 bath • 830 ft²
3 bedroom semi-detached house for sale in Merrivale Road, Exeter, Devon, EX4 — £225,000 • 3 bed • 1 bath • 591 ft²






































































