Spacious family home near Northern Line and local amenities.
Three double bedrooms plus one single bedroom (four total)
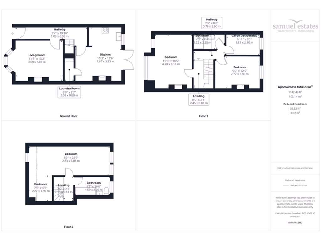
Set on a quiet residential street in Colliers Wood, this four-bedroom mid-terrace blends period character with contemporary living. The ground floor living room retains a high-ceiling bay and fireplace, while an open-plan modern kitchen and dining area create a sociable heart to the home. Natural light fills the top-floor principal bedroom which sits alongside a three-piece bathroom.
Practical features include gas central heating, double glazing (install date unknown) and an Energy Performance Certificate rated C. The large private garden is a standout for the area and provides useful outdoor space for children or entertaining. Colliers Wood Underground (Northern Line) is within easy walking distance, offering quick journeys into central London.
Notable considerations are factual: the property sits on a relatively small plot and the brick walls are assumed to be uninsulated, so buyers should factor potential insulation or retrofit costs into plans. Permit parking applies locally and the stamp duty/council tax sits at Merton Band D. Overall, the house suits a family or professionals seeking space, good schools nearby, and excellent transport links, with scope to personalise and improve thermal performance.
4 bedroom semi-detached house for sale in Park Road, Colliers Wood, SW19 — £1,300,000 • 4 bed • 2 bath • 1637 ft²
4 bedroom terraced house for sale in Four bedrooms Colliers Wood/Mitcham borders, CR4 — £625,000 • 4 bed • 2 bath • 1190 ft²
2 bedroom terraced house for sale in Palestine Grove, Colliers Wood, SW19 — £650,000 • 2 bed • 1 bath • 853 ft²
3 bedroom terraced house for sale in Walpole Road, Colliers Wood, SW19 — £725,000 • 3 bed • 1 bath • 836 ft²
4 bedroom house for sale in Clive Road, Colliers Wood, SW19 — £975,000 • 4 bed • 2 bath • 1407 ft²
3 bedroom maisonette for sale in University Road, London, SW19 — £700,000 • 3 bed • 2 bath • 878 ft²






















































































































