Ideal for first-time buyers or investors seeking central PO4 convenience.
No onward chain — ready for quicker completion
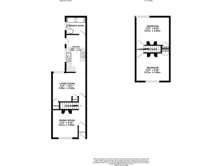
A compact, characterful two-bedroom mid-terrace offered with no forward chain, suited to first-time buyers or buy-to-let investors. The house retains period features—fireplace, sash-style windows and built-in storage—combined with modern comforts such as double glazing and gas central heating.
The ground floor provides two separate reception rooms and a fitted kitchen opening toward the rear. A shower room sits at the rear of the house; there is no separate bath. Upstairs are two double bedrooms with built-in wardrobes. The overall footprint is modest at about 554 sq ft, so rooms and circulation are small-to-average in scale.
Outside, the enclosed rear garden is low-maintenance at approximately 21ft, useful for outdoor space without heavy upkeep. On-street parking and a small paved forecourt serve the home; there is no private driveway. Broadband and mobile signal are strong in this central location, and local schools and amenities are within easy reach.
Buyers should note the compact plot and room sizes—this is a modest city terrace rather than a spacious family home. Presentation is neutral and maintained, but buyers seeking larger living areas or gardens may find the property limiting. Overall, it offers straightforward living or rental potential in a sought-after central PO4 location.
2 bedroom terraced house for sale in Landguard Road, Southsea, PO4 — £220,000 • 2 bed • 1 bath • 656 ft²
2 bedroom terraced house for sale in Eastfield Road, Southsea, PO4 — £250,000 • 2 bed • 1 bath • 600 ft²
2 bedroom terraced house for sale in Londesborough Road, Southsea , PO4 — £235,000 • 2 bed • 1 bath • 678 ft²
2 bedroom terraced house for sale in Eastfield Road, Southsea, PO4 — £260,000 • 2 bed • 1 bath • 674 ft²
2 bedroom terraced house for sale in Eastney Road, Southsea, PO4 — £230,000 • 2 bed • 1 bath • 648 ft²
2 bedroom terraced house for sale in Highland Street, Southsea, PO4 — £240,000 • 2 bed • 1 bath • 500 ft²










































































