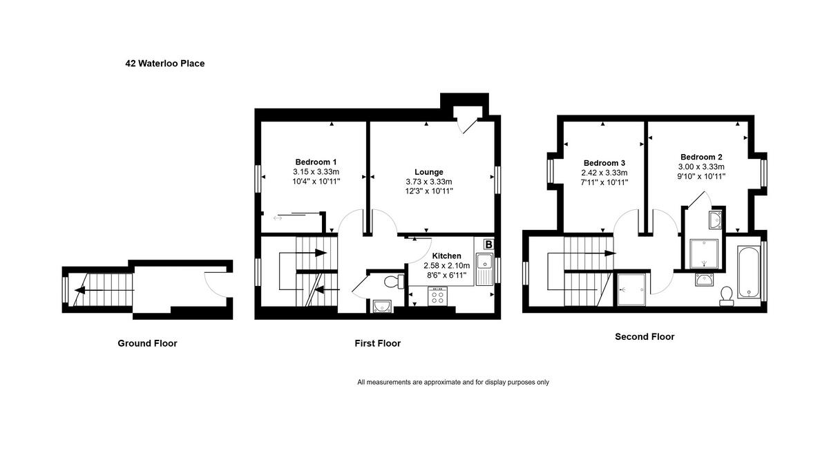
Three bedrooms across two upper floors
Set across the upper two floors of an end-terraced traditional stone building, this three-bedroom maisonette places city living within easy reach of shops, cafés and public transport. The generous lounge with high ceilings and tall window creates a welcoming central space, while the kitchen is fully fitted with integrated appliances and practical work surfaces. With gas-fired central heating and timber-framed double glazing throughout, the home is warm and efficient for year-round comfort.
The layout suits a range of buyers: first-time purchasers seeking a roomy city base, professionals wanting a central pied-a-terre, or landlords after a well-presented rental. The property includes a main bathroom with bath and separate shower, an en-suite to the second bedroom and a convenient separate WC on the first floor—useful for families and sharers.
Practical points to note: the flat is on two levels, so stairs are required between living and sleeping areas. The building sits in an area classified as very deprived locally, which may influence future resale or rental values. The EPC is D (61) and the timber-framed windows and boiler (in the kitchen) are features to inspect as part of ongoing maintenance. No dedicated parking is specified.
Overall, this is a well-maintained, characterful city-centre maisonette offering flexible accommodation and immediate amenities. It will appeal to buyers prioritising location and space over a turnkey luxury finish.
3 bedroom flat for sale in Waterloo Place, Inverness, IV1 1NB, IV1 — £145,000 • 3 bed • 3 bath • 947 ft²
2 bedroom maisonette for sale in 32C Tomnahurich Street, Inverness, IV3 — £155,000 • 2 bed • 1 bath • 562 ft²
2 bedroom maisonette for sale in 21a Attadale Road, Inverness, IV3 5QH, IV3 — £175,000 • 2 bed • 1 bath • 764 ft²
2 bedroom flat for sale in Telford Street, Inverness, IV3 5LE, IV3 — £120,000 • 2 bed • 1 bath • 710 ft²
3 bedroom flat for sale in Harrowden Road, Inverness, IV3 5QN, IV3 — £175,000 • 3 bed • 3 bath • 893 ft²
3 bedroom apartment for sale in Southside Road, Inverness, IV2 — £165,000 • 3 bed • 1 bath • 7300 ft²














































































































































