Move-in ready family home near schools and transport links.
Six bedrooms across three storeys, suited to large or multi-generation families
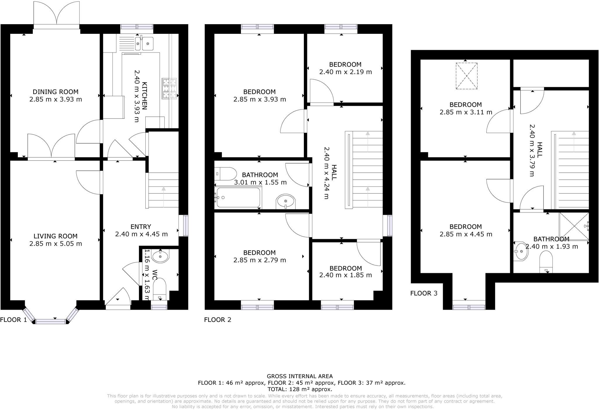
A spacious, well-presented three-storey semi-detached home offering six genuine bedrooms — ideal for a growing or multi-generational family. The house is presented move-in ready with modern finishes, a fitted kitchen, two bathrooms and plentiful storage across three floors.
Practical benefits include a driveway, single garage and fast fibre (FTTP) broadband, plus excellent mobile signal and good nearby primary and secondary schools. The property sits close to local amenities and transport links, making daily commutes and family routines straightforward.
Notable trade-offs: the plot and overall footprint are small for six bedrooms, and there are only two bathrooms serving the household. The surrounding area is classified as deprived, which may affect resale profiles; crime is reported as average. Buyers seeking outdoor space or extensive grounds should be aware the garden and plot are modest.
6 bedroom semi-detached house for sale in Perry Hill Road, Oldbury, B68 — £425,000 • 6 bed • 3 bath • 1507 ft²
6 bedroom semi-detached house for sale in Springfield Road, Moseley, Birmingham, B13 — £475,000 • 6 bed • 2 bath • 1486 ft²
6 bedroom semi-detached house for sale in Queslett Road, Birmingham, B43 — £480,000 • 6 bed • 5 bath • 1766 ft²
6 bedroom semi-detached house for sale in Scholars Close, Birmingham, B21 — £550,000 • 6 bed • 2 bath • 1529 ft²
6 bedroom semi-detached house for sale in Robin Hood Lane, Birmingham, B28 — £575,000 • 6 bed • 4 bath • 1712 ft²
6 bedroom semi-detached house for sale in Rotton Park Road, Edgbaston, B16 — £395,000 • 6 bed • 3 bath • 1422 ft²


























































































































