Spacious period property with garden, parking and annex potential..
Five double bedrooms across large 3,140 ft² footprint
Period Georgian features: fireplaces, wood panelling, high ceilings
Large sunny rear garden and vaulted sunroom with garden access
Ample off-street parking; circular driveway and gravel courtyard
No onward chain; adjacent cottage available for annex or rental
Solid brick walls likely without insulation — energy upgrades needed
Local area: high crime levels and very deprived; consider security
Council tax described as quite expensive
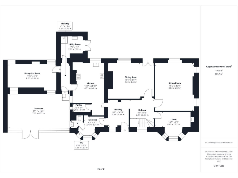
A spacious five-bedroom Georgian detached house offering substantial family accommodation across approximately 3,140 ft². The home retains many period features — ornate fireplaces, wood panelling, high ceilings and a grand staircase — and benefits from a large sunny garden and generous off-street parking via a gravel courtyard and circular driveway. The sale is no onward chain and an adjacent cottage is available separately, useful for annex-style living or rental income.
The ground floor provides multiple reception rooms, a large pine kitchen with central island, utility room and a vaulted sunroom that opens onto the garden. First-floor accommodation includes five bedrooms, an ensuite, and a large family bathroom with traditional fittings. Services are modern enough for everyday use: gas-fired central heating with boiler and radiators and double glazing fitted since 2002.
Notable practical points: the property is solid brick and likely has no cavity insulation in the walls, so buyers should expect energy-efficiency upgrades may be required. Council tax is described as quite expensive and the local area records higher crime levels and significant deprivation; those are material considerations for family security and resale. The house is well placed for local schools, rail and motorway links, making it convenient for school runs and commuting.
This home will suit a large family wanting character and space, or a buyer seeking to add value through sympathetic refurbishment. It offers immediate occupancy with scope to improve thermal efficiency and modernise elements while retaining strong period appeal.
4 bedroom detached house for sale in Norwood, Carleton, Pontefract, WF8 — £775,000 • 4 bed • 2 bath • 2153 ft²
5 bedroom house for sale in Moor Lane, Pontefract, WF8 — £750,000 • 5 bed • 3 bath • 2422 ft²
4 bedroom detached house for sale in Carleton Road, Pontefract, WF8 — £365,000 • 4 bed • 2 bath • 1733 ft²
4 bedroom detached house for sale in Carleton Road, Pontefract, WF8 — £365,000 • 4 bed • 2 bath • 1588 ft²
5 bedroom detached house for sale in Carleton Road, Pontefract, WF8 — £425,000 • 5 bed • 2 bath • 2335 ft²
6 bedroom detached house for sale in Carleton Road, Pontefract, WF8 — £830,000 • 6 bed • 3 bath • 330 ft²


























































































































































































































