**Standout Features:**
- Spacious 1,853 square feet commercial office space
- Multiple meeting rooms and open-plan areas
- Air conditioning throughout
- Close proximity to Bermondsey Street’s vibrant social scene
- Freehold ownership
**Potential Downsides:**
- Located on lower ground floor
- Current condition may require maintenance depending on business setup needs
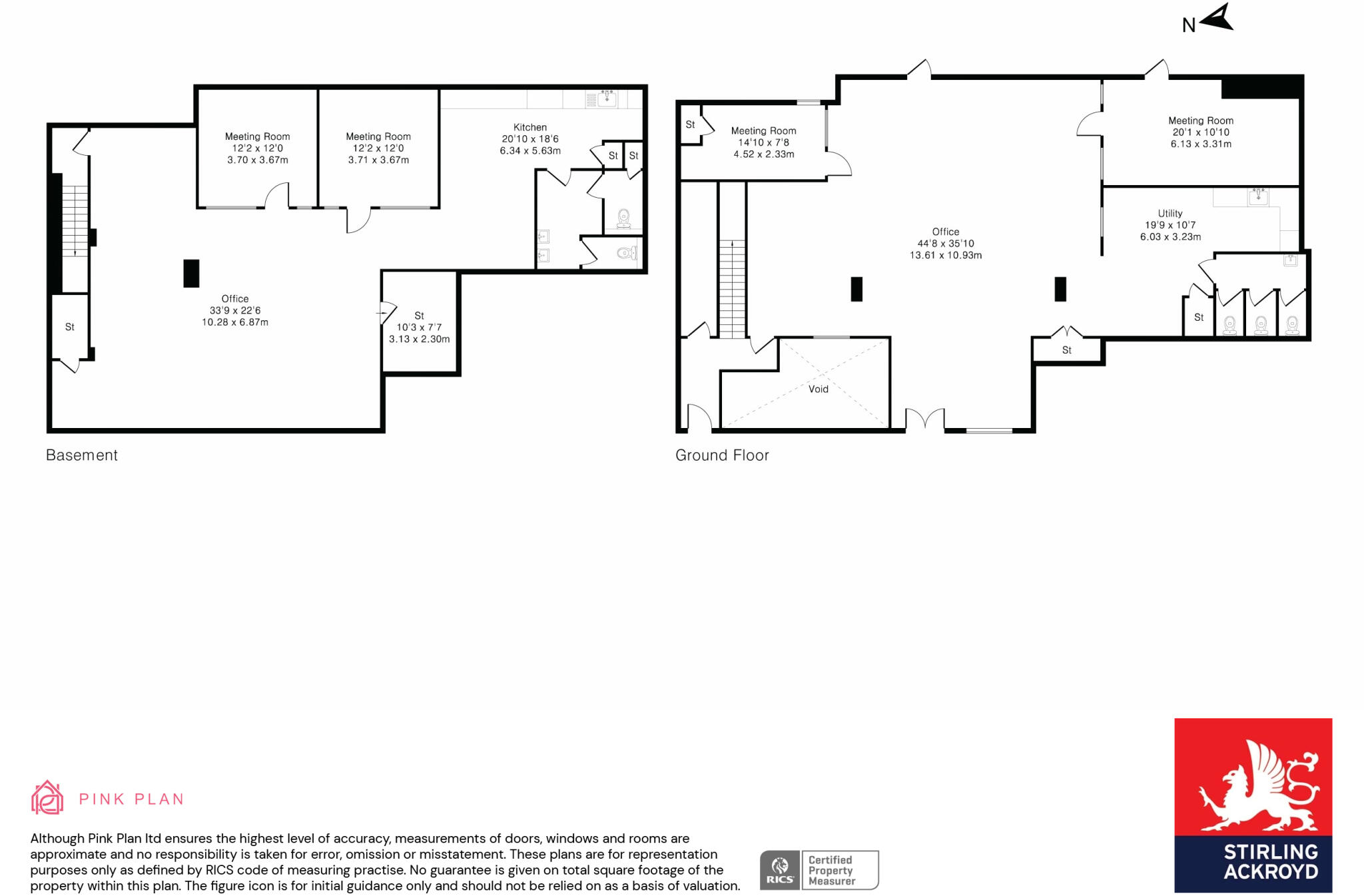
This contemporary lower ground floor office, located in the increasingly desirable Bermondsey area, offers a generous 1,853 square feet of versatile workspace, perfect for owner-occupiers or businesses seeking a vibrant atmosphere. The well-lit interior features multiple meeting rooms, a spacious open-plan area, and essential facilities including a kitchen, WC, and shower, creating a comfortable environment for any workforce.
Just moments away from trendy cafes, restaurants, and key attractions like Borough Market, this property is nestled within a multicultural neighborhood that attracts creative and tech industries alike. Excellent transportation links via London Bridge Station enhance accessibility, making it an attractive location for both employees and clients. This unique opportunity to own a prime office space in a fast-evolving area is not to be missed—schedule your viewing today to make it your own!
Office for sale in 9 Hestia House, City Walk, London, SE1 3ES, SE1 — £975,000 • 1 bed • 1 bath • 1950 ft²
Office for sale in 8 & 9 Hestia House, City Walk, London, SE1 3ES, SE1 — £1,575,000 • 1 bed • 1 bath • 3803 ft²
Office for sale in 8 -9 Hestia House, City Walk, London, SE1 3ES, SE1 — £1,575,000 • 1 bed • 1 bath • 3803 ft²
Office for sale in Cedar Court London, SE1 — £1,000,000 • 4 bed • 1 bath • 1604 ft²
Office for sale in Unit 3, 9 Bell Yard Mews, Bermondsey Street, London, SE1 3UY, SE1 — £1,080,000 • 1 bed • 1 bath • 1932 ft²
Office for sale in 170-172 Tower Bridge Road, London, SE1 3LS, SE1 — £1,400,000 • 1 bed • 1 bath • 3575 ft²










































































