Well-presented family house with garage and fast FTTP internet.
Corner plot with private low-maintenance rear garden
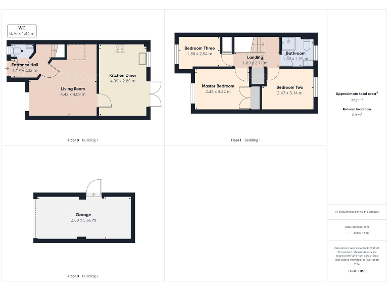
Set on a corner plot in Meadenvale, this modern three-bedroom home is presented in good order and suits a family or buy-to-let purchaser. The living room opens via double doors into a bright kitchen-diner with French doors to a private, low-maintenance rear garden. A recently fitted Worcester boiler and an EPC rating of C reduce short-term running concerns.
Accommodation is compact but well arranged across two floors: a downstairs cloakroom, main living room, kitchen-diner and three upstairs bedrooms served by a refitted shower room. The detached garage with power and lighting and driveway parking add practical storage and secure parking that many nearby properties lack. Fast FTTP broadband and excellent mobile signal support home working and streaming.
Buyers should note the plot and internal living space are modest for a three-bedroom property, and the area is classified as higher-crime and relatively deprived compared with wider averages. The property’s cavity walls are recorded as built without insulation (assumed), so buyers wanting maximum energy efficiency may wish to investigate insulation options. Prospective landlords should check selective licensing requirements for this area before purchasing as a buy-to-let.
3 bedroom semi-detached house for sale in Meadenvale, Peterborough, PE1 — £220,000 • 3 bed • 1 bath • 866 ft²
3 bedroom detached house for sale in Meadenvale, Peterborough, PE1 — £290,000 • 3 bed • 1 bath • 587 ft²
3 bedroom semi-detached house for sale in Meadenvale, Peterborough, PE1 — £220,000 • 3 bed • 1 bath • 754 ft²
3 bedroom semi-detached house for sale in Meadenvale, Peterborough, PE1 — £220,000 • 3 bed • 1 bath • 754 ft²
3 bedroom semi-detached house for sale in Meadenvale, Peterborough, PE1 — £295,000 • 3 bed • 3 bath • 617 ft²
3 bedroom detached house for sale in Paulsgrove, Orton Wistow, Peterborough, PE2 — £289,995 • 3 bed • 1 bath • 614 ft²














































































