Period character, generous gardens and far-reaching country views for family living.
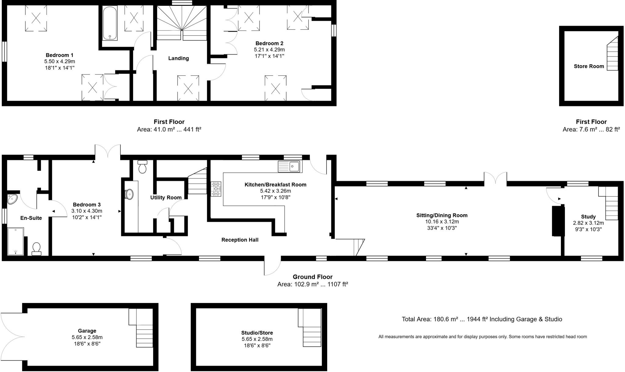
- Converted period barn with vaulted ceilings and exposed beams
- 33' dual-aspect sitting/dining room with garden access
- Large, landscaped garden with patio and ornamental pond
- Garage with first-floor mezzanine studio/storage
- Three double bedrooms plus ground-floor study/bedroom
- Heated by oil (Calor Gas); private drainage present
- Cavity walls assumed uninsulated — energy upgrades likely
- Tenure and council tax details not specified, verify legally
Set within the South Downs National Park, this converted period barn offers sizeable, flexible living across an unusually large single-storey footprint with additional first-floor bedrooms. The 33' dual-aspect sitting/dining room with vaulted ceiling and exposed beams is a striking central space, and triple-aspect first-floor bedrooms enjoy attractive rural views. A generous, well-landscaped garden, patio and garage with first-floor mezzanine add practical outdoor and storage space.
The accommodation suits family life: three principal bedrooms plus a ground-floor study/bedroom, two bathrooms, a separate utility and direct garden access from principal rooms for easy indoor–outdoor living. The plot and setting deliver privacy and far-reaching Downland views, with village amenities and good schools within easy reach.
There are some clear, factual considerations: heating is provided by oil (Calor Gas) with a boiler and radiators, and drainage is private. The property’s cavity walls are assumed to have no built-in insulation, so buyers should budget for potential energy-efficiency upgrades. Tenure and some service details are not specified and should be confirmed.
Overall this is a characterful country home that balances immediate liveability with scope for sensible modernisation — ideal for families seeking space and rural lifestyle within the South Downs. Anyone prioritising low running costs or wanting a fully modern energy specification should allow for improvements.
3 bedroom barn conversion for sale in Elsted, Midhurst, West Sussex, GU29 — £775,000 • 3 bed • 2 bath • 1493 ft²
3 bedroom barn conversion for sale in Elsted, Midhurst, GU29 — £775,000 • 3 bed • 2 bath • 1625 ft²
4 bedroom barn conversion for sale in Worldham Hill, East Worldham, GU34 — £985,000 • 4 bed • 3 bath • 2296 ft²
3 bedroom barn conversion for sale in Stoughton, Chichester, PO18 — £1,150,000 • 3 bed • 2 bath • 2221 ft²
4 bedroom semi-detached house for sale in Stopham Road, Pulborough, West Sussex, RH20 — £1,300,000 • 4 bed • 3 bath • 3453 ft²
3 bedroom barn conversion for sale in Coombe Road, East Meon, Petersfield, Hampshire, GU32 — £695,000 • 3 bed • 1 bath • 1366 ft²














































