Spacious four-bedroom family house with garage, parking and scope to extend.
South‑west facing private rear garden with plenty of sunlight
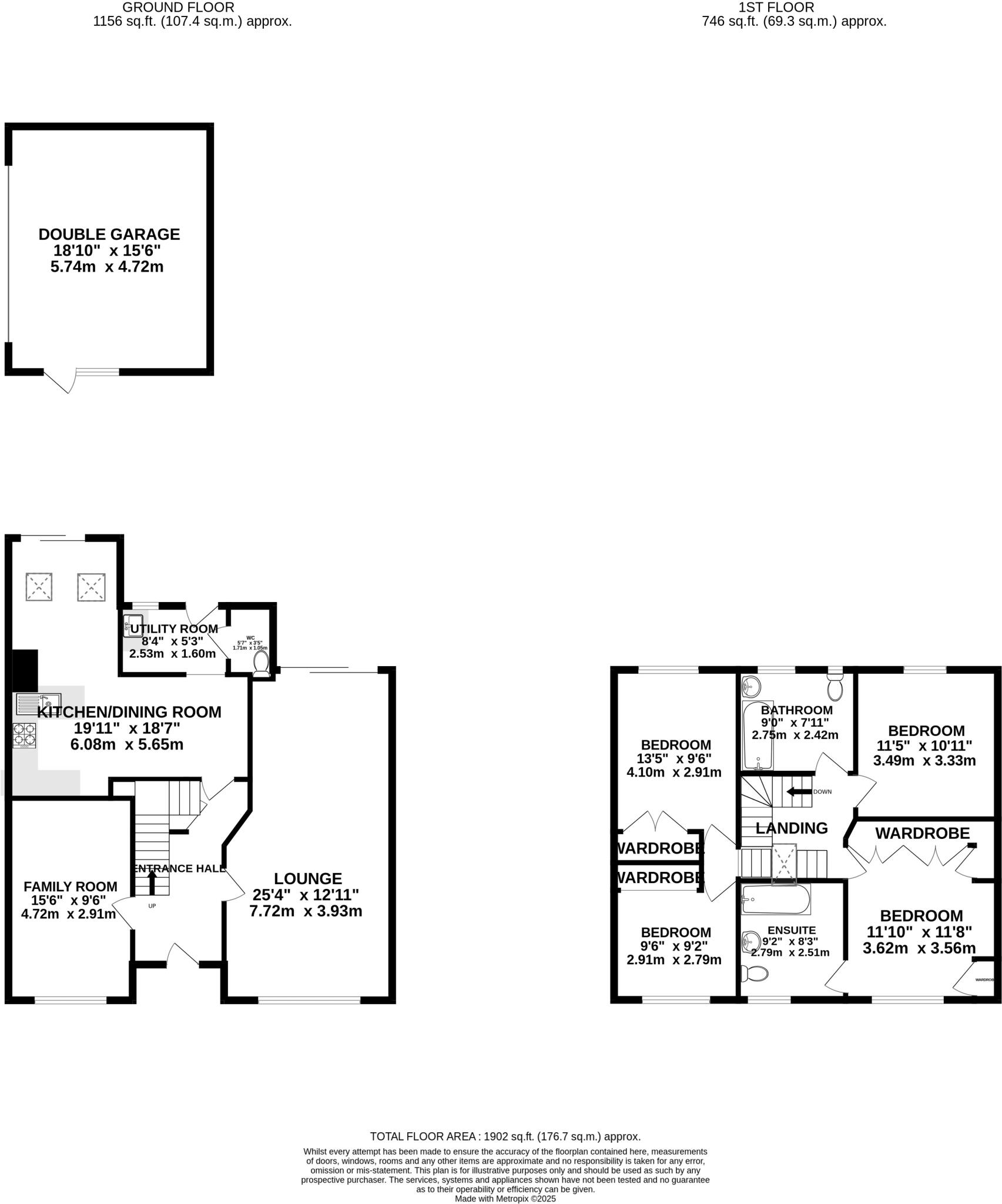
Set on a generous plot in sought-after Park Street, this well-presented four-bedroom detached house offers bright, flexible family accommodation across two floors. The ground floor features a dual-aspect living room with garden access, an extended kitchen/dining space, utility and a separate family room — practical for everyday family life and entertaining.
Upstairs the principal bedroom benefits from fitted wardrobes and an en-suite; three further bedrooms and a family bathroom complete the sleeping accommodation. Natural light and period proportions give the house a comfortable, traditional feel, while the south-west facing rear garden and picturesque front garden provide sunny outdoor space and privacy.
Practical strengths include a detached double-width garage, rear driveway parking (accessed via Old Orchard) and fast broadband with excellent mobile signal. There is clear potential to extend or adapt the layout, subject to relevant planning permissions, which will appeal to families seeking to add value or tailor the home to long-term needs.
Important factual points: the original cavity walls are assumed uninsulated, and glazing installation dates are unknown. The property dates from the early 20th century and, while well maintained, may benefit from modernisation in places to improve energy efficiency. Local crime levels are reported above average for the area; purchasers should assess this in person and via local checks.
4 bedroom detached house for sale in Pilgrim Close, Park Street, St. Albans, Hertfordshire, AL2 — £1,000,000 • 4 bed • 3 bath • 1993 ft²
3 bedroom terraced house for sale in Watling Street, Park Street, St. Albans, Hertfordshire, AL2 — £625,000 • 3 bed • 1 bath • 1313 ft²
5 bedroom detached house for sale in Westfields, St Albans, Hertfordshire, AL3 — £1,250,000 • 5 bed • 3 bath • 1954 ft²
3 bedroom semi-detached house for sale in Frederick Place, Curo Park, Frogmore, St. Albans, AL2 — £525,000 • 3 bed • 2 bath • 1080 ft²
4 bedroom detached house for sale in Orchard Drive, Park Street, St. Albans, Hertfordshire, AL2 — £1,050,000 • 4 bed • 4 bath • 2347 ft²
4 bedroom detached house for sale in Mayflower Road, Park Street, St. Albans, AL2 — £1,625,000 • 4 bed • 3 bath • 2800 ft²






























































































