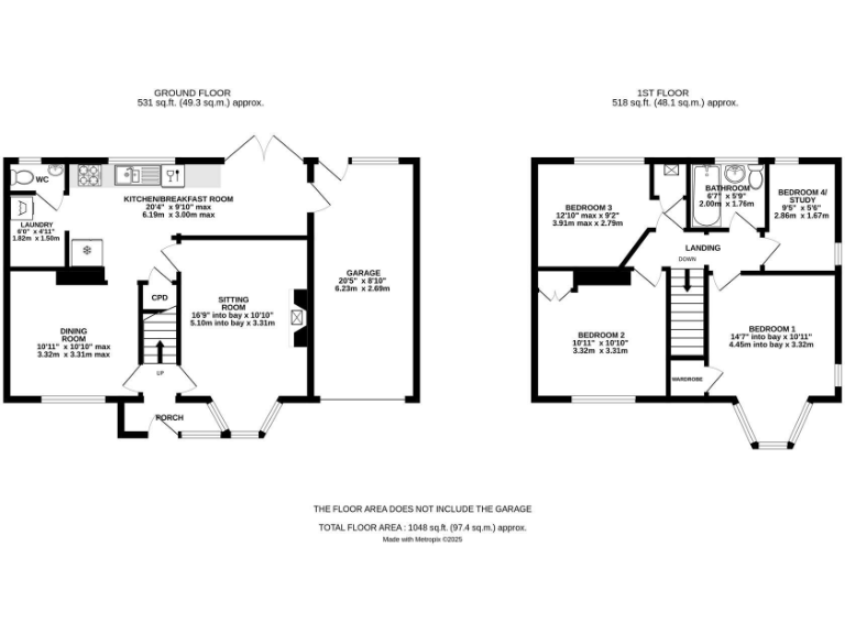
**Standout Features:**
- Charming Edwardian-style end-of-terrace house built in 1907
- 4 spacious bedrooms, one currently serves as a study
- Delightful rear garden with a paved patio and gazebo
- Attached garage and ample off-street parking
- Convenient location within half a mile of town center and train station
- Well-maintained with uPVC double-glazed windows & gas central heating
- Positioned in the Letchworth Conservation Area with character
**Concerns:**
- No insulation in walls (assumed)
- Possible restrictive covenants on property use
- Unknown flooding history—check for past incidents
This charming Edwardian end-of-terrace home perfectly blends classic appeal with modern comforts. Nestled in a desirable location of Letchworth Garden City, the property boasts four generous bedrooms, including a flexible space that can serve as a study. The spacious living room, adorned with a stylish bay window, invites natural light, creating a warm atmosphere for both relaxation and entertaining.
The delightful rear garden offers a retreat with its paved terrace, gazebo, and lush greenery—ideal for family gatherings or quiet evenings. You’ll appreciate the attached garage and ample off-street parking, making this home both practical and inviting. Despite its traditional charm, be mindful of potential insulation needs and the property's covenant restrictions.
Strategically located just half a mile from both the town center and mainline rail service, you can effortlessly reach London in under 30 minutes. Top-notch local schools enhance the family-friendly environment, presenting an excellent opportunity for young families or investors looking for rental potential. Don’t miss your chance to own a piece of Letchworth’s history—properties like this are rarely available for long!
3 bedroom end of terrace house for sale in Shott Lane, Letchworth Garden City, SG6 — £465,000 • 3 bed • 1 bath • 922 ft²
2 bedroom terraced house for sale in Ridge Road, Letchworth Garden City, SG6 — £435,000 • 2 bed • 1 bath • 792 ft²
3 bedroom semi-detached house for sale in Lordship Lane, Letchworth Garden City, SG6 — £575,000 • 3 bed • 2 bath • 1224 ft²
3 bedroom semi-detached house for sale in Station Way, Letchworth Garden City, SG6 — £525,000 • 3 bed • 1 bath • 935 ft²
4 bedroom semi-detached house for sale in Cowslip Hill, Letchworth Garden City, SG6 — £745,000 • 4 bed • 2 bath • 1790 ft²
2 bedroom terraced house for sale in Glebe Road, Letchworth Garden City, SG6 — £415,000 • 2 bed • 1 bath • 856 ft²






































































































































