**Standout Features:**
- Newly built semi-detached home (2023)
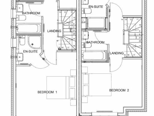
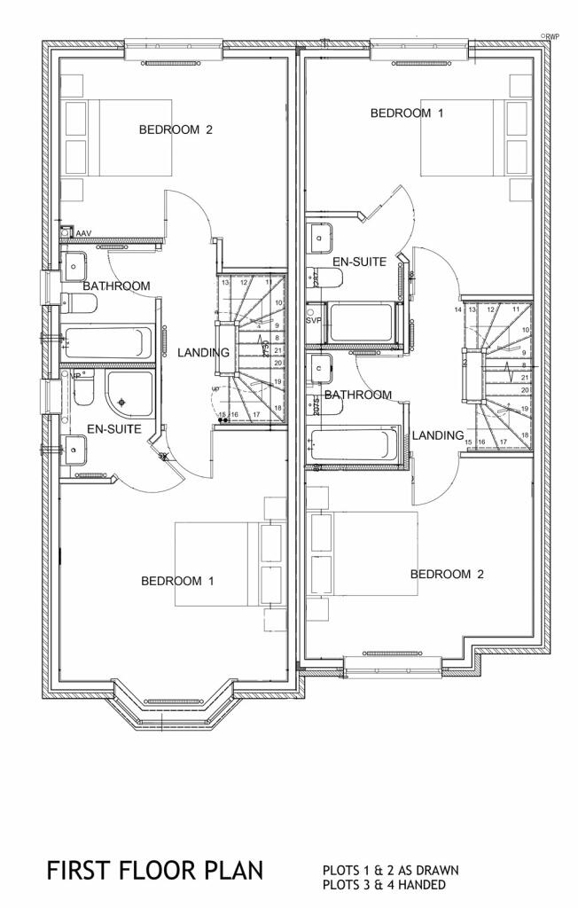
- Four spacious bedrooms across three floors
- Three bathrooms, including ensuite for the master
- Modern design with high-quality fittings and fixtures
- Off-street allocated parking
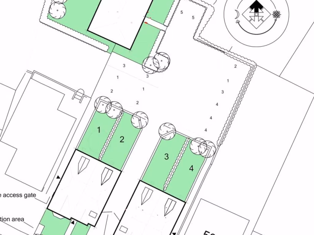
- Located in a sought-after residential area near Cannock Town Centre
- Close to well-rated schools
**Concerns:**
- Crime rate is above average in the area
**Summary:**
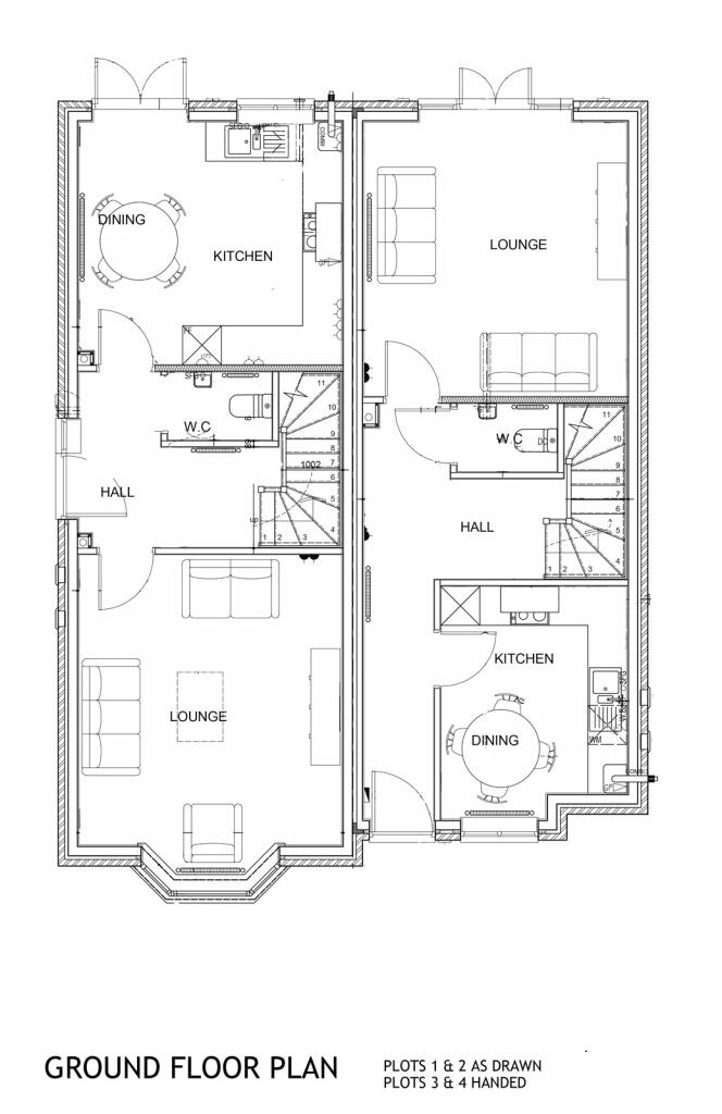
Discover the charm and modern convenience of this newly built four-bedroom home, ideally located on New Penkridge Road near Cannock Town Centre. With Tudor revival style, this semi-detached property features three generously sized floors of living space, including a bright and cozy lounge, a contemporary open-plan kitchen/dining area with high-gloss finishes, and easy access to a modest rear garden via French doors.
The accommodation is thoughtfully arranged with two bedrooms on each of the upper floors, complemented by a master with ensuite, plus two additional bathrooms to service the family. The property is designed for modern family living with features such as UPVC windows, chrome fittings, and a spacious hallway. While the area experiences a higher crime rate, the affluent neighborhood is family-friendly, boasting excellent local schools and amenities. Don’t miss out on this rare opportunity to secure a beautifully finished new home—ideal for families or investors looking for a solid rental potential.
4 bedroom semi-detached house for sale in New Penkridge Road, Cannock, Staffordshire, WS11 — £360,000 • 4 bed • 3 bath
4 bedroom house for sale in New Penkridge Road, Cannock, WS11 — £360,000 • 4 bed • 3 bath • 1331 ft²
4 bedroom house for sale in New Penkridge Road, Cannock, WS11 — £360,000 • 4 bed • 1 bath • 1331 ft²
4 bedroom detached house for sale in Dorchester Road, Cannock, Staffordshire, WS11 — £450,000 • 4 bed • 2 bath • 1975 ft²
4 bedroom detached house for sale in Old Fallow Road, Cannock, WS11 — £350,000 • 4 bed • 2 bath • 1628 ft²
4 bedroom detached house for sale in Lichfield Road, Cannock, WS11 — £325,000 • 4 bed • 1 bath • 1412 ft²






























































