Impressive two-level Victorian flat, ideal for families seeking space and period charm.
Extremely large top-floor apartment — 2,259 sqft across two levels
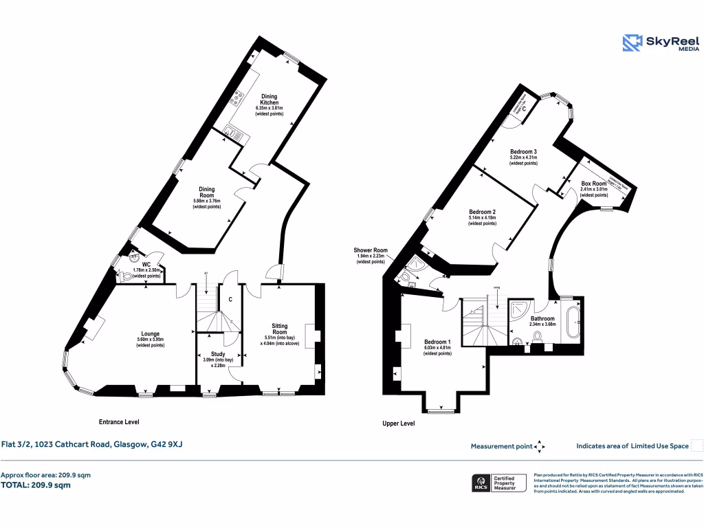
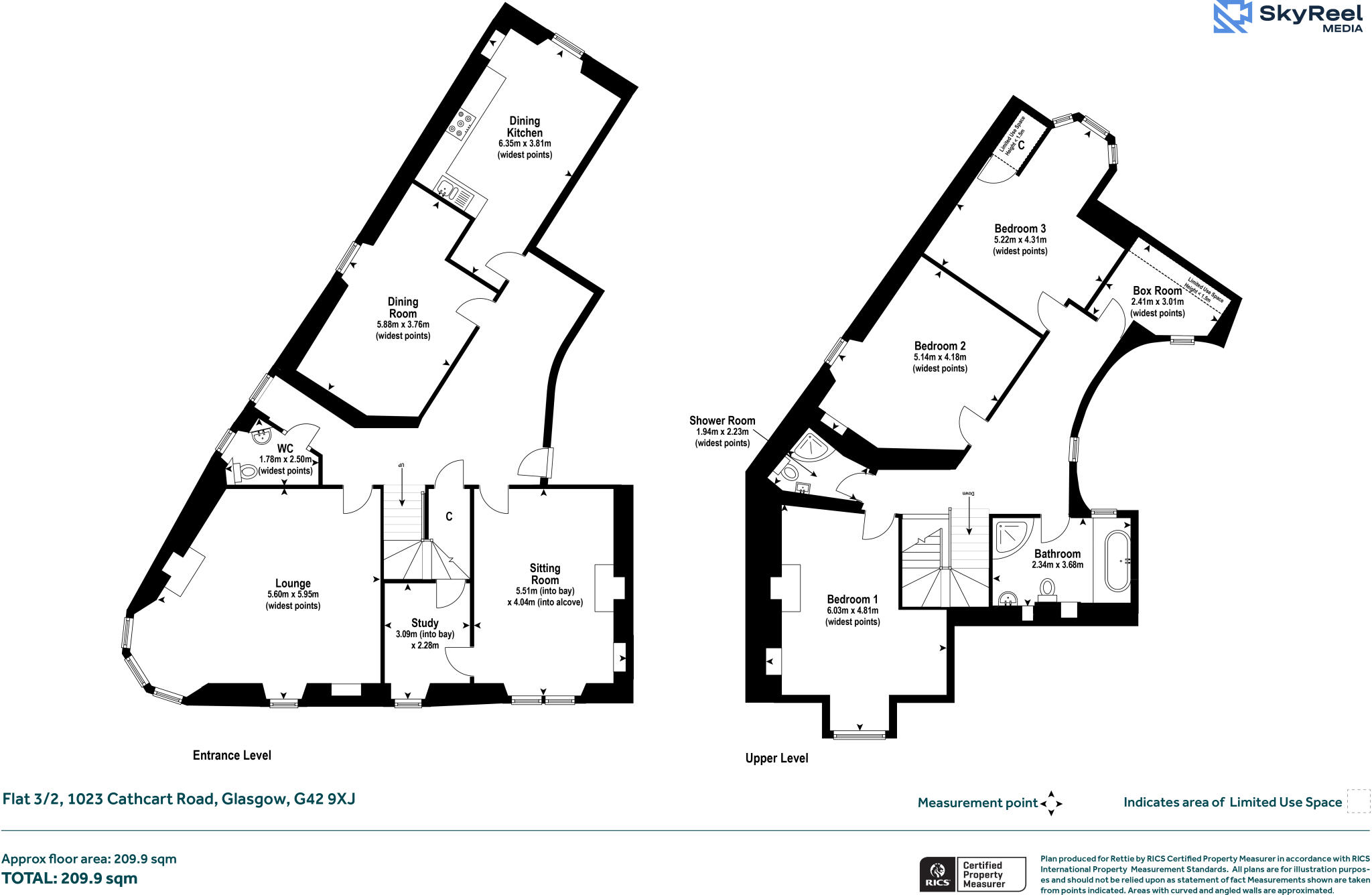
This exceptionally large two-level top-floor apartment offers flexible family living in Mount Florida. High ceilings, original plasterwork, bay windows and feature fireplaces give the home strong period character and an impressive sense of space.
Layout includes a very broad reception hallway, bay-windowed sitting room, separate lounge/TV room with adjoining study, formal dining room and a large dining kitchen with breakfast bar. A fixed internal staircase leads to three large double bedrooms, a shower room, and a family bathroom with bath plus separate shower; a small upper study/dressing room adds versatility.
Practical benefits include gas central heating, double glazing, secure entry, and a shared enclosed rear garden. The flat is a short walk to Mount Florida station, Queen’s Park and local cafes, shops and restaurants, making everyday life convenient.
Notable drawbacks are clear: the interior needs modernisation throughout, original internal stairs are steep, and the property sits within a very deprived local area which may affect resale timing. The garden is shared rather than private and the EPC is C with Council Tax band D. These factors suit a buyer seeking a spacious period apartment to renovate and personalise.
1 bedroom flat for sale in 126 Cumming Drive, Flat 2/2, Mount Florida, Glasgow, G42 9BW, G42 — £149,000 • 1 bed • 1 bath • 820 ft²
2 bedroom flat for sale in Florida Drive, Glasgow, G42 — £183,000 • 2 bed • 1 bath • 1500 ft²
2 bedroom apartment for sale in Stanmore Road, Mount Florida, Glasgow, G42 — £255,000 • 2 bed • 1 bath • 964 ft²
2 bedroom flat for sale in 17 Prospecthill Grove, Flat 3/1, Mount Florida, Glasgow, G42 9LG, G42 — £179,000 • 2 bed • 1 bath • 1012 ft²
2 bedroom flat for sale in Carmunnock Road, Mount Florida, G44 4TZ, G44 — £175,000 • 2 bed • 1 bath • 767 ft²
2 bedroom flat for sale in Stanmore Road, Glasgow, G42 — £249,950 • 2 bed • 1 bath • 894 ft²


































































































































