Substantial Georgian house with two-acre gardens and leisure facilities.
Nearly 7,660 sqft of period accommodation across multiple floors
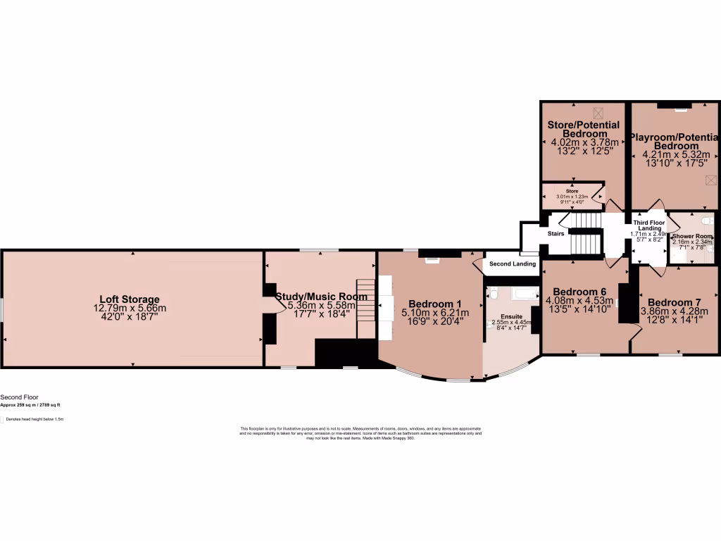
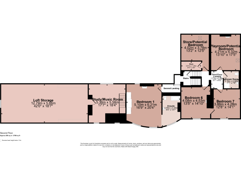
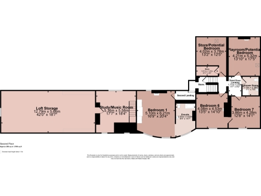
The Old Rectory is a rare, Grade II listed Georgian residence built in 1739, offering nearly 7,660 sqft of versatile living space across three principal floors and attic dormers. Set within about 2 acres of mature, south-westerly gardens with specimen trees, sweeping drive and multiple outbuildings, the house combines grand period proportions with practical family living: drawing room, lounge, formal dining room and a high-spec living/dining kitchen. A pool room with an installed Endless Pool and extensive cellar and storage spaces add flexible leisure and utility options.
Accommodation includes seven bedrooms and five bathrooms with scope to extend to nine bedrooms subject to listed-building consent. Principal rooms retain original features and high ceilings; the master suite has fitted wardrobes and an en-suite. There are practical additions including a double garage, single garage, carport and courtyard access, making the house suitable for an established family needing extensive bedroom and entertaining space.
Buyers should note material considerations: the property is Grade II listed, which restricts alterations and may complicate major structural changes or modernisation. The energy rating is exempt and council tax sits at Band G, reflecting high ongoing costs. The location is village-centred and very affluent, close to strong independent and state schools and about 4 miles from Loughborough for wider services, but broadband speeds are reported slow and mobile signal is average. These factors suit buyers seeking character, space and privacy who are comfortable with listed-property responsibilities.
6 bedroom country house for sale in Burton Overy, Leicestershire, LE8 — £1,995,000 • 6 bed • 4 bath • 5000 ft²
8 bedroom detached house for sale in The Old Rectory, Great Easton, Leicestershire, LE16 — £1,950,000 • 8 bed • 3 bath
7 bedroom detached house for sale in Main Street, Ratcliffe On The Wreake, LE7 — £1,950,000 • 7 bed • 2 bath • 4993 ft²
7 bedroom country house for sale in Gonalston, NG14 — £2,500,000 • 7 bed • 4 bath • 10000 ft²
6 bedroom country house for sale in The Old Rectory, Stoke Albany, Market Harborough, LE16 — £2,500,000 • 6 bed • 4 bath • 3992 ft²
7 bedroom country house for sale in Main Street, Frolesworth, LE17 — £1,550,000 • 7 bed • 3 bath • 6422 ft²










































































































































































































































