Newly modernised two-bedroom with garden near Harrow On The Hill transport.
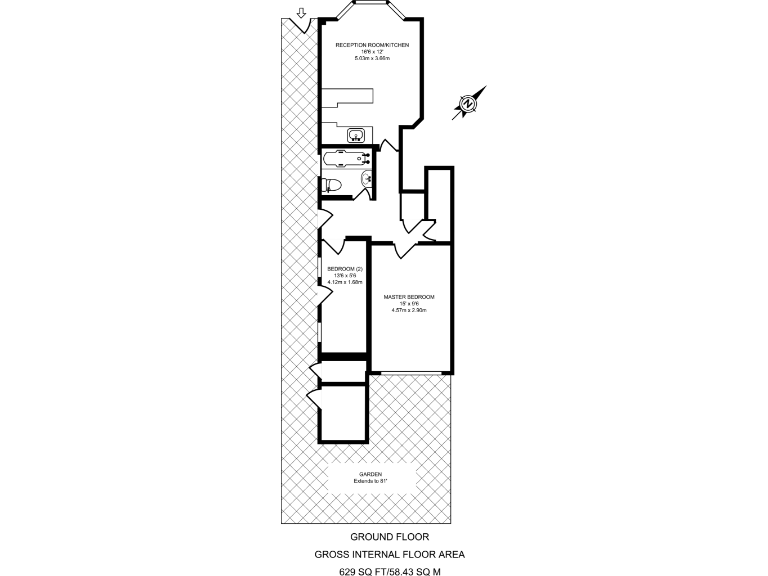
Newly renovated two-bedroom ground-floor layout
This recently renovated two-bedroom ground floor maisonette combines period character with fresh, neutral interiors. The living room benefits from an Edwardian bay window and good natural light, giving the main reception a comfortable, welcoming feel. The property includes a private rear garden and a driveway providing off-street parking — rare benefits so close to Harrow town centre.
Practical details suit first-time buyers or investors: 629 sq ft of accommodation, a 106-year lease remaining and mains gas central heating with radiators. The building dates from the early 1900s and retains solid brick construction; buyers should note walls are assumed uninsulated, which may affect running costs and prompt further improvement work.
Location is a strong selling point. The flat is within walking distance of Harrow On The Hill Underground and National Rail station, local shops, supermarkets and several well-regarded schools, making everyday life straightforward. Broadband and mobile signal are reported as fast and excellent.
Be transparent about local conditions: crime levels in the immediate area are classified as very high. That is an important consideration for living comfort and security measures. Overall, the property offers move-in-ready accommodation with scope for personalisation and potential rental appeal given transport links and nearby amenities.
2 bedroom maisonette for sale in Longley Road, Harrow, HA1 — £325,000 • 2 bed • 1 bath • 549 ft²
2 bedroom maisonette for sale in Radnor Road, Harrow, HA1 — £500,000 • 2 bed • 1 bath • 825 ft²
2 bedroom maisonette for sale in Radnor Avenue, Harrow, HA1 — £550,000 • 2 bed • 2 bath • 800 ft²
2 bedroom flat for sale in Headstone Road, Harrow, HA1 — £375,000 • 2 bed • 1 bath • 672 ft²
2 bedroom maisonette for sale in Radnor Road, Harrow, HA1 — £400,000 • 2 bed • 1 bath • 600 ft²
2 bedroom flat for sale in Radnor Avenue, Harrow, HA1 — £550,000 • 2 bed • 2 bath • 800 ft²






























































































































































































































