Spacious four-bed Victorian with huge private garden and detached garage.
Impressive stone Victorian façade and high ceilings
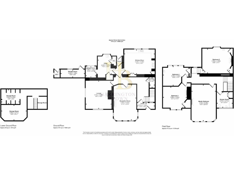
A handsome stone-built period home set within almost 3,000 sq yards of mature grounds, The Briary House blends Victorian character with substantial family space. High ceilings, sash and bay windows, original wood floors and fireplaces create generous reception rooms filled with natural light. The kitchen-diner centres on a red Aga and links to a pantry, utility and sheltered courtyard — practical for daily family life.
The extensive plot includes a detached double garage, driveway parking and roughly half the garden as wooded area, offering privacy, scope for gardening and sheltered children's play. Practical extras included in the sale are curtains, blinds, light fittings and a supply of seasoned logs and fuel.
This is a genuine period property with evident maintenance and retrofit considerations. Stone external walls likely have no cavity insulation, and many original fittings will need sympathetic updating. Council Tax is high (Band F) and the house, built before 1900, will suit buyers prepared to manage upgrading and ongoing upkeep.
Chain free and tucked behind discreet gates, the house is well placed for Shotley Bridge village amenities and primary schools within walking distance, with Consett and regional centres reachable for commuting. It will appeal most to families or downsizers seeking a spacious historic home with substantial garden and renovation potential.
4 bedroom semi-detached house for sale in Queens Road, Shotley Bridge, DH8 — £435,000 • 4 bed • 2 bath • 1803 ft²
3 bedroom detached house for sale in Benfieldside Road, Consett, DH8 — £374,950 • 3 bed • 2 bath • 1512 ft²
3 bedroom semi-detached house for sale in Summerhill, Shotley Bridge, Consett, Durham, DH8 6SF, DH8 — £250,000 • 3 bed • 2 bath • 1204 ft²
5 bedroom terraced house for sale in Benfieldside Road, Shotley Bridge, DH8 — £230,000 • 5 bed • 3 bath • 1921 ft²
5 bedroom semi-detached house for sale in Benfieldside Road, Consett, DH8 — £420,000 • 5 bed • 2 bath • 1599 ft²
4 bedroom detached house for sale in Broadwood View, Shotley Bridge, DH8 — £575,000 • 4 bed • 4 bath • 1849 ft²


























































































































































































































