Modern low-maintenance apartment near Arundel town centre and transport links.
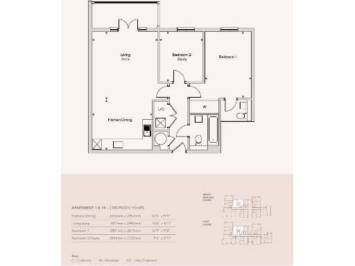
Upper-ground two-bedroom apartment with balcony
This upper-ground-floor two-bedroom apartment offers a bright open-plan living space, private balcony and allocated off-street parking. At around 747 sq ft, the layout suits first-time buyers seeking a low-maintenance home close to Arundel town centre and rail links. High-spec fittings include integrated SMEG appliances, fitted wardrobes and contemporary bathroom finishes.
The home benefits from a long new 999-year lease, a KERS indoor heat-pump MEV system with integrated heat recovery, and included flooring throughout. New-build warranties (10-year Premier guarantee and a 2-year developer warranty) add protection for early purchasers. The development sits close to the South Downs National Park and is within walking distance of local shops, schools and transport.
Notable practical points are factual and should be considered: management/estate charges are not yet confirmed and council tax banding will be set post-completion. Broadband speeds are average for the area. Marketing images and potential views (castle/cathedral) are not guaranteed for every apartment. Overall, this is a well-specified, low-maintenance new home with modern energy features but some running costs and final specifications remain to be confirmed.
2 bedroom apartment for sale in Home 2 The Arun Apartments, BN18 — £385,000 • 2 bed • 2 bath • 825 ft²
2 bedroom apartment for sale in Home 3 The Arun Apartments, BN18 — £395,000 • 2 bed • 2 bath • 864 ft²
1 bedroom apartment for sale in Home 5 The Arun Apartments, BN18 — £265,000 • 1 bed • 1 bath • 539 ft²
2 bedroom apartment for sale in Home 18 The Arun Apartments, BN18 — £365,000 • 2 bed • 2 bath • 764 ft²
2 bedroom apartment for sale in The Causeway, Arundel, BN18 — £250,000 • 2 bed • 2 bath • 496 ft²
2 bedroom apartment for sale in River Road, Arundel, BN18 — £485,000 • 2 bed • 2 bath • 1011 ft²






























