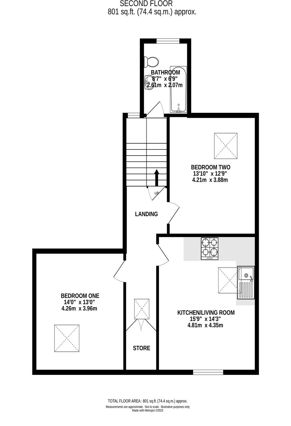
**Standout Features:**
- Two double bedrooms
- Recently refurbished with modern finishes
- Bright interior with exposed beams and Velux windows
- Off-road parking available
- Excellent proximity to local amenities and transport links
- Share of freehold tenure
This charming and newly renovated two-bedroom apartment offers a perfect blend of modern comfort and appealing design, making it an ideal choice for families, first-time buyers, or investors looking for rental potential. Located on the top floor, the apartment boasts high ceilings, large windows, and an inviting kitchen/diner that creates a spacious and airy atmosphere.
Nestled in the vibrant area of Heaton Moor, this property is just moments away from an array of shops, bars, and restaurants along Shaw Road, as well as easy access to Heaton Chapel station and the M60 motorway. Families will appreciate the wide selection of highly-rated schools nearby, contributing to a community enriched by highly qualified professionals.
While this home shines with its modern features, it also presents potential buyers with the opportunity to further personalize the space. However, given its popularity, viewing is highly recommended—don’t miss your chance to own this delightful apartment in an attractive location!
2 bedroom apartment for sale in Heaton Moor Road, Heaton Moor, SK4 — £275,000 • 2 bed • 2 bath • 811 ft²
2 bedroom apartment for sale in Heaton Moor Road, Heaton Moor, SK4 — £240,000 • 2 bed • 2 bath • 790 ft²
2 bedroom apartment for sale in Lea Road, Heaton Moor, Stockport, SK4 — £260,000 • 2 bed • 1 bath • 678 ft²
2 bedroom flat for sale in Parsonage Road, Stockport, SK4 — £260,000 • 2 bed • 1 bath • 776 ft²
2 bedroom apartment for sale in Leewood Court, Hooley Range, Heaton Moor, SK4 — £224,995 • 2 bed • 1 bath • 577 ft²
1 bedroom apartment for sale in Heaton Gardens, Heaton Moor Road, SK4 — £210,000 • 1 bed • 1 bath • 917 ft²










































